POLE Опубликовано 21 ноября, 2017 Автор Опубликовано 21 ноября, 2017 Не надо скидывать со счетов аэрацию при атмосфере. не надо. Аэрация дистиллята в бочке (долгая выдержка) рекомендуется. Появляются новые ароматы, ацетальдегид частично улетучивается, но внесенный кислород снова порождает ацетальдегид. Этот дистиллят, что подверг вакуумной фильтрации, аэрировал в бочке неоднократно по 2 минуты. Получилось хорошо. Чушь, не правда-ли. в каждой чуши есть доля правды))) Но не стоит путать механизмы поведения растворенных газов в жидкостях и в твердых телах. Что улучшает дистиляты, при каких либо воздушных обработок воздухом. Кислород, азот, углекислый газ или др.? Какие молекулы из воздуха лучше проникают черед стенки дубовой бочки? Какие молекулы воздуха больше повержены проникновению в схлапываемые ворота? чем меньше молекула вещества, тем легче ей проникнуть через поры. У углекислого газа молекула , больше чем у кислорода. Может имеет смысл в момент схлапывания ворот, размещать дистилят в той - благоприятной среде. Не знаю друзья, но чуйка мне подсказывает, что это углекислый газ, но ни как не кислород. углекислый газ взаимодействует с водой порождая угольную кислоту. Она неустойчива и взаимодействует со спиртами образуя сложные эфиры. Примерно также как уксусная кислота взаимодействует со спиртом порождая этилацетат. Короче получается кучка всякого говнеца - очень вредные для здоровья вещества. Органолептику продукта точно не улучшат, несмотря на их мизер в дистилляте. Поэтому не рекомендую экспериментировать продувку крепких спиртных напитков (и хранение в среде) углекислым газом. Вакуумная пробка (насос) для хранения вина в открытой ранее бутылке. Работает, храню дистиллят в шкафу (не в холодильнике). Если хранить дистиллят в бутылке просто, закрывая обычной пробкой, то со временем (к концу бутылки) он становится горьким и жестким.Таких пробок по конструкции много на Али 2
РоманЫчъ Опубликовано 21 ноября, 2017 Опубликовано 21 ноября, 2017 (изменено) Отбор голов на мизере мощности. Так что процессы одинаковы. Мои изики четко отходят не в головах, а в подголовниках. Только вот что каждый из нас подразумевает под изиками))) Покоя не дают Изики в подголовниках. (В моем понимании ИЗИКи - сивушный запах самогона, изомайловый спирт) Как это может происходить. Вот видимо и у меня: Свежый дистилят в одну две недели отличный - видимо преобладают ароматы и заглушают сивуху Постоит время начинают преобладать сивуха. Но вспоминая все обстоятельства, действительно убеждаюсь, что они в ВД преобладают в головной фракции. Но почему высококипящий Изик в АД являющийся Хвостовой фракцией превращается в в ВД в головную. Может взглянуть по другому: Может сам спирт при АД по отношению к ИА являющийся головной, и превращается при ВД по отношению к ИА хвостовой Вот если-бы знать Креки для изомайлового спирта при Вакууме. И еще при АД Креки меняются в зависимости от температуры кипения. А если мы в ВД дистилируем по постоянной температуре, то только остается зависимость от спиртуозности У углекислого газа молекула , больше чем у кислорода. А у азота? углекислый газ взаимодействует с водой порождая угольную кислоту. Она неустойчива и взаимодействует со спиртами образуя сложные эфиры. Примерно также как уксусная кислота Думаю угольная и уксусная, это не одно и то же. Но больше мне понравилось в ответе: "....угольную кислоту. Она неустойчива и взаимодействует со спиртами образуя сложные эфиры" А как же Вина, вообще насыщенны углекислым газом, а шампанское? И если принюхаться к насосу на начальном этапе, прут ведь ароматные эфиры вместе с углекислым газом. Именно не на старте, а на начальном этапе, когда уже уходим глубже в вакуум. Сколько не принюхивалься к сидру нет там такого аромата, который проявляется во время вакумирования. Может имеет смысл, что углекислый газ при вакуумировании и приближении к началу кипения начинает реагировать с парами спирта и образует ту самую кислоту , и тот в свою очередь сложные эфиры? Я Вам еще не надоел, но сегодня день какой-то, мысли прут. У углекислого газа молекула , больше чем у кислорода. Пылесос какой мусор быстрее отсосет легкий и мелкий? Может всетаки углекислый газ? При вакуумной фильтрации может быть быстрее молекулы кислорода отсасываются из емкости? Изменено 21 ноября, 2017 пользователем РоманЫчъ
nedelew Опубликовано 21 ноября, 2017 Опубликовано 21 ноября, 2017 [b][member=РоманЫчъ][/b], Попробовать насыть напиток углекислотой очень просто.Достаешь из закромов сифон,покупаешь балончики и вперед.Но помня такие опыты с водкой из молодости,что-то меня не прельщает подобная процедура.Очень уж суровый получался напиток ;) . При вакуумной фильтрации может быть быстрее молекулы кислорода отсасываются из емкости? Тогда бы заводы по производству газов не мучились с рек.колоннами для сжиженного воздуха,да и установки по накачке шин азотом не использовали бы молекулярные мембраны.
РоманЫчъ Опубликовано 21 ноября, 2017 Опубликовано 21 ноября, 2017 Достаешь из закромов сифон Я не о газировке. Да и остальное
POLE Опубликовано 21 ноября, 2017 Автор Опубликовано 21 ноября, 2017 (изменено) ИЗИКи - сивушный запах самогона сивушный запах это смесь запахов соединений в хвостовых фракциях при атмосферной перегонке. В чистом виде изоамиловый спирт воняет что-то типа растворителя (нитрокраска) с резким удушливым запахом. При вдыхании спазмирует и жжет слизистую носа. При низкой спиртуозности браги или СС (до примерно 35%об по спирту) изоамилол имеет Крект ниже единицы. Это значит, что он (в большинстве своем) летит в отбор вначале перегона,как верхние концевые примеси. Но поскольку у него Ткип 132С, то мизер его удерживается в браге. При вакууме Крект должен снижаться (по идее). Значит изоамилол летит раньше спирта, но позднее эфиров, что мы и наблюдаем в подголовниках. Вот если-бы знать Креки для изомайлового спирта при Вакууме. как-то Руди считал в теме А у азота? меньше чем у углекислого газа. Диаметр молекулы зависит от радиусов образующих ее атомов, их взаимного притяжения. Размеры частиц меняются с увеличением числа протонов и энергетических уровней. А как же Вина, вообще насыщенны углекислым газом, а шампанское? в них спирта сильно меньше. Ты не задумывался почему шампанское Брют горчит и почему оно сильно бъет в голову? Не только углекислый газ тому виной, но и гадости, что успешно маскируют "ароматами". Пылесос какой мусор быстрее отсосет легкий и мелкий? Может всетаки углекислый газ? Не корректно сравнивать с пылесосом. Послушай коллегу [member=nedelew],. Он правильно говорит. Попробовать насыть напиток углекислотой очень просто.Достаешь из закромов сифон,покупаешь балончики и вперед.Но помня такие опыты с водкой из молодости,что-то меня не прельщает подобная процедура.Очень уж суровый получался напиток ;) . Изменено 21 ноября, 2017 пользователем POLE
den45 Опубликовано 21 ноября, 2017 Опубликовано 21 ноября, 2017 Знаю инерцию нагрева куба. как только начинаю подбираться к рабочей температуре в парах, примерно за 10С выключаю нагрев. Куб по инерции разгоняется, сначала начинает сильно капать потом капель снижается Что за автоматика у тебя на нагреве стоит? По немногу укрепляюсь в идее mr_hait, - гнать без укрепления, но на пределе вакуума (ниже - 92кПа) и температуры охлаждения. ИМХО легче будет убирать изики и пр.гадость.Читаю ветку и начинаю потихоньку сомневаться в целесообразности постройки колонны т.к. на данный момент почти все заторы зерновые ароматики в них не много,но всё же она есть. Есть большое опасение после колонны совсем не фига не останется.Сейчас перегоняю по классической вискарной схеме первый погон без отбора на максимальной скорости.На втором по капельно бошки тело при 40гр на -92кПа.
POLE Опубликовано 26 ноября, 2017 Автор Опубликовано 26 ноября, 2017 Что за автоматика у тебя на нагреве стоит? простой китайский термоконтроллер типа такого + регулятор мощности нагрева (ручная регулировка) Есть большое опасение после колонны совсем не фига не останется. после укрепления на многотрубной царге есть немного ароматов и совсем нет запаха хвостов (на пороге ощущения) Сейчас перегоняю по классической вискарной схеме первый погон без отбора на максимальной скорости.На втором по капельно бошки тело при 40гр на -92кПа. тоже вариант.
POLE Опубликовано 11 декабря, 2017 Автор Опубликовано 11 декабря, 2017 Вот она крышка готовая, осталось только два маленьких штуцера впаять лежит у меня такая. Кстати неплохой самогон получал с сухопарником))) Не нравиться эстетика банки из под варенья))), в посудных магазинах много красивых фужеров и стаканов есть. на красивые фужеры и стаканы такую крышку не оденешь. И кстати есть у меня уровнемер из 60мл стопки))) На фото видно. Мин объем примерно в 30 мл. Его и думаю поставить на шлюз в вд установку вместе с экстрактором (рисунок).
РоманЫчъ Опубликовано 12 декабря, 2017 Опубликовано 12 декабря, 2017 (изменено) Связь шлюза с вакуумом через трехходовой клапан думаю надо ставить перед барбатером. Честно говоря не понял как ты хочешь собирать ароматные запахи, в каком виде. В виде газов или в виде духов вместе с жидкостью из барбатера. Да и потом вместе с ароматами там будут и легко испаримые растворители. Изменено 12 декабря, 2017 пользователем РоманЫчъ
POLE Опубликовано 12 декабря, 2017 Автор Опубликовано 12 декабря, 2017 Связь шлюза с вакуумом через трехходовой клапан думаю надо ставить перед барбатером. можно и так. Но во избежание попадания воды в клапан лучше поставить как нарисовано или между ловушкой паров и барботером. как ты хочешь собирать ароматные запахи, в каком виде. В виде газов или в виде духов вместе с жидкостью из барбатера. Да и потом вместе с ароматами там будут и легко испаримые растворители. тут просто. На этапе дегазации браги открыт кран над барботером. Как только вышли на процесс (отбор голов) кран перекрывается и откачка паров идет через барботер. По идее пары должны перейти в воду. Понятно что не 100%. Нужен очень мелкий диспергатор пузырьков. Вначале попробую аквариумный камень. Потом посмотрим.
Андрей751 Опубликовано 12 декабря, 2017 Опубликовано 12 декабря, 2017 (изменено) Андрей 751, а тебе не показалось, что : при первом решении дефлегматор (низкий наклонный ) напиток ароматнее, не жели того последнего использованного тобой. Кажется мне высокая труба подрезает ароматы. В дефлегматоре легкие пары, через трубку связи с атмосферой,- летят сразу в насос, в дистилляторе все идет в отбор. Изменено 12 декабря, 2017 пользователем Андрей751
Murzzzilk Опубликовано 14 декабря, 2017 Опубликовано 14 декабря, 2017 Господа хорошие, а имеет смысл при перегонке с зерновой браги понижать давление где-то на пол-атмосферы? Больше снижать - боюсь куб схлопнется.
POLE Опубликовано 14 декабря, 2017 Автор Опубликовано 14 декабря, 2017 при перегонке с зерновой браги понижать давление где-то на пол-атмосферы? может и имеет. Попробуй. Расскажешь.Мы стараемся снижать давление до температур кипения ниже 45С. При этом белки сворачиваются не так интенсивно, как при атмосферной перегонке. Трупики дрожжей не воняют. Много меньше побочных реакций типа взаимодействие кислот со спиртами и др органикой в браге. Больше снижать - боюсь куб схлопнется. какой конструкции куб?
Murzzzilk Опубликовано 14 декабря, 2017 Опубликовано 14 декабря, 2017 Куб - бочка на 50 литров, дед ещё делал под капусту. Железо тонкое.. Рассчитываю увеличить скорость отбора без увеличение мощности нагрева, а то нагрев ЭНГЛУ 2.5 КВт
POLE Опубликовано 14 декабря, 2017 Автор Опубликовано 14 декабря, 2017 Куб - бочка на 50 литров, дед ещё делал под капусту. Железо тонкое.. не стоит рисковать. Железо хоть тонкое, хоть потолще (при диаметре от 40 см), втянется внутрь. Швы могут лопнуть. Лучше перейти на кегу 50л. Рассчитываю увеличить скорость отбора без увеличение мощности нагрева скорость отбора не увеличишь. Просто сдвигается точка кипения. 1
Андрей751 Опубликовано 21 декабря, 2017 Опубликовано 21 декабря, 2017 Олег 1 Перист. насос нужен для точного отбора голов с дегустацией. 2 При использовании мультипленочной многотрубной царги, на выходе хвостов не наблюдал. При использовании отбора по уровню, тело можно отбирать в большую вакуумируемую емкость - ресивер - без дегустации.
POLE Опубликовано 21 декабря, 2017 Автор Опубликовано 21 декабря, 2017 1 Перист. насос нужен для точного отбора голов с дегустацией. не нужен если есть авт.вак.шлюз. Удобнее. Сейчас дорабатываю конструкцию, чтобы объем дозы был поменьше и остаточного дистиллята в трубках по минимуму. 2 При использовании мультипленочной многотрубной царги, на выходе хвостов не наблюдал. они идут примерно после 40% в струе При использовании отбора по уровню, тело можно отбирать в большую вакуумируемую емкость - ресивер - без дегустации. вот эта идея мне и нравится, тк позволяет прицепить вак.экстрактор для добавления нужных ароматов.
Андрей751 Опубликовано 21 декабря, 2017 Опубликовано 21 декабря, 2017 Олег Если разделить потоки: 1 головы покапельно 2 тело в емкость то можно для отбора голов и проб применить самый дешевый перист насос с трубкой 2х4 который включается только при отборе голов и проб.
Андрей751 Опубликовано 22 декабря, 2017 Опубликовано 22 декабря, 2017 (изменено) Автоматика у меня еще проще,- на головах перистальтика работает непрерывно, когда останавливается,- происходит набор в межтрубном пространстве и по переливу уровня - из стеклянного тройника выходит тело в большую емкость-ресивер. Изменено 22 декабря, 2017 пользователем Андрей751
POLE Опубликовано 22 декабря, 2017 Автор Опубликовано 22 декабря, 2017 Автоматика у меня еще проще,- на головах перистальтика работает непрерывно, не завоздушивается? Или завоздушивается но продолжает работать?Показать видео можешь?
Андрей751 Опубликовано 22 декабря, 2017 Опубликовано 22 декабря, 2017 (изменено) Пока в проекте. Изменено 22 декабря, 2017 пользователем Андрей751
Андрей751 Опубликовано 25 декабря, 2017 Опубликовано 25 декабря, 2017 (изменено) ИМХО если головку не совать в вакуум, то для отбора подойдет любая головка с шлангом со стенкой в 1,6 мм. Больше нет смысла (будет жестким), Меньше - мало проработает. Диаметры шланга примерно - 4-5 мм внутренний. Думаю что влияет не только толщина стенки - важнее отношение внутреннего диаметра к толщине стенки. Трубка 5х1,5 делает на входе вакуум -95кпа но схлопывается - заказал 1х1, 2х1, 3х1,5 и 4х1,5 буду пробовать. не завоздушивается? Или завоздушивается но продолжает работать? Показать видео можешь? Насос будет стоять ниже выхода - думаю будет работать. Изменено 25 декабря, 2017 пользователем Андрей751
POLE Опубликовано 25 декабря, 2017 Автор Опубликовано 25 декабря, 2017 (изменено) Думаю что влияет не только толщина стенки - важнее отношение внутреннего диаметра к толщине стенки. Трубка 5х1,5 делает на входе вакуум -95кпа но схлопывается - заказал 2х1, 3х1,5 и 4х1,5 буду пробовать. согласен. У меня вроде трубка 3,6х1,6. Жесткая . Трудно ее сдавливать. Набросал концепт идею по вакуумной непрерывной дистилляции с целью получения СС. Это для тех у кого сотни и тысячи литров браги))) Сам не буду реализовывать, тк мне без надобности. Если кто заинтересуется можно обсудить и в железо воплотить. Изменено 25 декабря, 2017 пользователем POLE 1
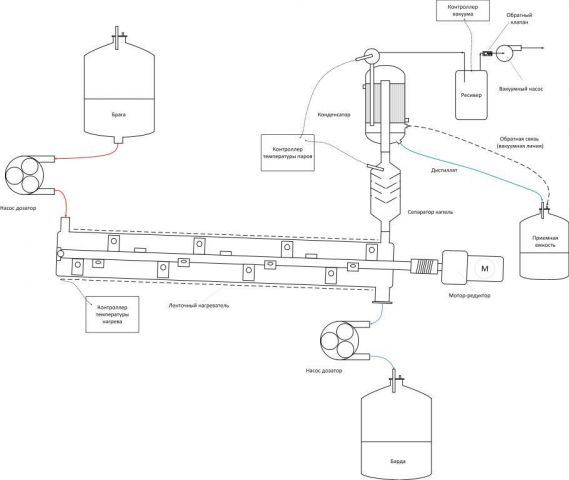
POLE Опубликовано 10 января, 2018 Автор Опубликовано 10 января, 2018 На праздниках перегонял брагу без укрепления (два раза по 40 литров). На рисунке схема. Брага - виноградная паста Матоса + инверт (сахар 8 кг и лим.кислота) + дрожжи Lalvin 1116 (2 пачки). Вместо многотрубной царги поставил пустую трубу (45мм). Отбирал головы как обычно на низкой мощности покапельно через шлюз. Получил дистиллят (тело) от 65 до 30% (в среднем 50%), и хвосты 18%. Тело сохранило виноградные ароматы, НО в теле явно чувствуются хвостовые фракции. Может для бочки и нормально, но перфекционизм не дает покоя. Пока оставил отстояться. Потом попробую как и куда его. Первые впечатления, что дистиллят хуже чем с укреплением. Второе - новинки в железе. Поставил обратный клапан перед вакуумной связью со шлюзом (чтобы вакуум в кубе не падал при работе шлюза) и барботер (чтобы улавливать "ароматы"). Клапан работает отлично. Никаких перерывов в работе установки нет. Барботер создает большое гидравлическое сопротивление, что ведет к повышению температуры в кубе. Мне это не понравилось, поэтому не буду его использовать. Третье - вел перегонку при -95кПа. Температура в кубе была не выше 38С. После перегонки засыпал в барду сахар, размешал и поставил гидрозатвор. Дрожжи выжили и снова завелись на следующий день - забулькало!!! 3
Предбанник Опубликовано 11 января, 2018 Опубликовано 11 января, 2018 (изменено) ...0,05 г янтарной кислоты (пол таблетки) растворил в 50 мл воды. Отфильтровал. В состав таблетки у разных производителей входят разные вещества, но лишние в воде не растворяются. Стандартная таблетка 0,5 г содержит 0,1 г янтарной кислоты, глюкозу (не лишняя в водке) и прочую разную фигню, с счастью в основном не растворимую в воде. Количество взято на 3 литра готового продукта. 0,1 г соды тоже растворил в воде. Фруктоза. 0,6 г/литр... Она советует в приемную емкость сразу класть соду, ибо в контакте с крепким спиртом ни к чему плохому не приведет. А вот кислоту уже в воду которой будем разбавлять дистилят. "А сахар и соль баловство мальчики - по вкусу"))) Приветствую всех! Подскажет пожалуйста, к чему вё же пришли в поисках стабилизации вкуса. Какой окончательный рецепт. Заказ как раз оформляю. Здесь почти всё есть. магазин представлен отдельной темой на форуме (кто не знает) https://fermenti.ru/oblagorazhivanie/ пытаюсь видео моего рабочего прототипа на базе "ОМ-1" выложить. пока не получается. пробую ... 274 метра. отказывается загружаться.. Перегоняю на ОМ-1, через ресивер. Контроль Овен ТРМ 500. Выставляю ограничение 45С. Далее 47. С. От ПИД регуляции отказался. 47грС - уже идёт дойка. Дотягиваю до 54градусов, хотя кажется что после 51гр уже вода. Хочу в приёмную банку (10 литров) купить маленький бытовой спиртометр. Большим (в банке) не очень удобно Изменено 11 января, 2018 пользователем Предбанник
Рекомендуемые сообщения
Для публикации сообщений создайте учётную запись или авторизуйтесь
Вы должны быть пользователем, чтобы оставить комментарий
Создать аккаунт
Зарегистрируйте новый аккаунт в нашем сообществе. Это очень просто!
Регистрация нового пользователяВойти
Уже есть аккаунт? Войти в систему.
Войти