Юнга Опубликовано 20 октября, 2020 Опубликовано 20 октября, 2020 (изменено) 27 минут назад, EVlzh69 сказал: Сварил новую приблуду. Припоминаю конструкцию твоего куба, по моему, у тебя в нижней части куба есть кран для слива - было бы неплохо расположить насос там и подключить к нему всасывающий трубопровод насоса, а напорный-через твою приблуду, тогда точно будет всё работать и обратный клапан не нужен. 2 минуты назад, EVlzh69 сказал: подумаю, но клапан не обязателен Если насос расположен выше уровня браги, то я рассматриваю такую последовательность твоих действий: Залил брагу в куб. Смонтировал насос и залил его брагой. Снизил давление в кубе и дегазировал брагу. Нагрел брагу до температуры кипения. Включил циркуляционный насос В этом случае обратный клапан необходим. А какую последовательность действий ты предусматриваешь в своём эксперименте? Изменено 20 октября, 2020 пользователем Юнга
EVlzh69 Опубликовано 20 октября, 2020 Опубликовано 20 октября, 2020 @Юнга Да, есть. там даже два крана (которыми не пользуюсь СОВСЕМ), но один раз удачно закрутил крышку внутри куба на сливе и теперь страшновато её откручивать. Боюсь увеличения натечек, у меня и так с ними не просто. А там на сливе с краю стоит 2,0" кран , он шаровый, но разборный (такое гу-а-но, знал бы не тратил на него 5500 руб.) ещё одним минусом данного предложения является вероятность бОльших теплопотерь. Вот с твоёй подачи переварю на 1,0" край слива, и всё станет проще.
Юнга Опубликовано 20 октября, 2020 Опубликовано 20 октября, 2020 Только что, EVlzh69 сказал: ещё одним минусом данного предложения является вероятность бОльших теплопотерь. Все трубки пластиковые, корпус насоса, наверное, тоже из пластика - всё это имеет очень низкую теплопроводность и очень маленькую поверхность теплопередачи, ну в крайнем случае оберни всё поролоном(кроме двигателя насоса) - и дело с концом.
serv Опубликовано 20 октября, 2020 Опубликовано 20 октября, 2020 3 часа назад, Юнга сказал: Золотые слова, но всё таки думаю, что куб подпрыгивает от того что пар всё таки образуется(это я о твоих словах, что мощность расходуется на подпрыгивание, вместо парообразования) Вот даже вникать не хочу, отчего он подпрыгивает). Если подпрыгивает, значит на это накапливается и расходуется энергия, которую мы планировали использовать в мирных целях. 3 часа назад, Юнга сказал: Давай мы заменим введённое тобой слово "псевдокипение" на более правильное "испарение Неееет, только не это!! Термин правильный и описывает происходящее явление: как бы кипение жидкости при температуре ниже температуры кипения. При этом пузырьки образуются не на поверхности нагрева, в слое перегретой жидкости, а сформированы нами специально, в любом месте(хм..надо подумать, где лучше), в мелком объеме и большом количестве. 3 часа назад, Rudy сказал: дополнительные энергозатраты на всякие извращения типа пробулькивания Ну в общем- то и при кипении дополнительные энергозатраты на образование и формирование пузырьков..только не всегда правильных) Испарение же как-то совсем не подразумевает образование пузырьков. 3 часа назад, Юнга сказал: попробуем объяснить как ты с помощью по-сути циркуляционного насоса собираешься увеличивать подводимую мощность к кубу вплоть до пропускной способности выходного отверстия, чтобы жидкость при этом не кипела. Вакуумным насосом, работающим в режиме компрессора через барботер создаём массу мелких пузырьков у дна куба. А дальше- как при обычном кипении: пузырьки всплывают, увеличиваются в объёме, внутрь их испаряется жидкость и т.д. Но, в отличие от кипения, пузырьки не образуются сами и уносят пытающуюся перегреться жидкость с собой сразу, как только выходят из барботера, т.е. не прилипают к нагреваемой поверхности. Таким образом мы получаем режим принудительного пузырькового кипения, при котором будет максимальная теплопередача и парообразование. И отсутствие оснований для перехода в плёночный режим.
Олег6 Опубликовано 20 октября, 2020 Опубликовано 20 октября, 2020 1 час назад, EVlzh69 сказал: В ближайший погон буду тестировать Интересно, как сальник перенесет вакуум. Если плохо, то есть "магнитный" насос, ненамного дороже, заодно и "пищевой" (высокую температуру держит). Затем можно подключить в линию проточный водонагреватель - и пвк можно переквалифицировать по прямому назначению , а ВД вести в кеге. Если получится - тоже так сделаю.
EVlzh69 Опубликовано 20 октября, 2020 Опубликовано 20 октября, 2020 @Олег6 я ранее выкладывал разобранный такой насос.Там всё герметично. Катушка мотора вообще вся залита эпоксидкой. Плохо конечно, что подшипников там вообще никаких не предусмотрено. Но работает как то больше сотни часов уже. Причём погоны по 10 часов не редкость были.
Юнга Опубликовано 20 октября, 2020 Опубликовано 20 октября, 2020 (изменено) 50 минут назад, serv сказал: Вот даже вникать не хочу, отчего он подпрыгивает). Если подпрыгивает, значит на это накапливается и расходуется энергия, которую мы планировали использовать в мирных целях. Так она и расходуется в мирных целях - пузырьки пара охлаждаясь конденсируются и нагревают более холодные слои жидкости, при этом они скачкообразно уменьшаются в объёме, что приводит к гидроударам, но это побочные явления такого процесса теплопередачи. 50 минут назад, serv сказал: 4 часа назад, Юнга сказал: Давай мы заменим введённое тобой слово "псевдокипение" на более правильное "испарение Неееет, только не это!! То есть, таким образом ты претендуешь на открытие нового явления при фазовом переходе (первого рода) вещества из одного агрегатного состояния в другое? Если "псевдокипение" -это не испарение и не кипение(не сублимация - это точно), то это нечто новое и не познанное? А я тут корячусь с традиционными подходами классической физики, предупреждать же надо Но с другой стороны при "псевдокипении" испарение всё таки происходит: 50 минут назад, serv сказал: А дальше- как при обычном кипении: пузырьки всплывают, увеличиваются в объёме, внутрь их испаряется жидкость и т.д. 50 минут назад, serv сказал: Вакуумным насосом, работающим в режиме компрессора через барботер создаём массу мелких пузырьков у дна куба Вакуумный насос, работающий в режиме компрессора называется компрессором. Если мы компрессором будем закачивать газ в вакуумированную ёмкость для образования пузырьков, то при этом поднимется давление и вакуумный насос должен будет постоянно откачивать этот газ из куба для снижения давления. Нечто подобное происходит при натеканиях в системе- это очень нехорошее явление. Ну и практический вопрос: какой объём газа в единицу времени предполагается напускать для образования пузырьков при том условии, что при низких давлениях производительность вакуумного насоса стремится к нулю? Да, и дополнительные энергозатраты о которых говорил Rudy - постоянно работающий вакуумный насос и компрессор. А вообще то, всё что ты выше описал давно описано в лабораторных практикумах по перегонке веществ пол вакуумом, только там подача газа в вакуумируемую емкость осуществляется не компрессором, а капиллярными трубочками - кипелками, ну да ладно: "повторение - мать учения" или "новое-это хорошо забытое старое" . Правда термина "псевдокипение" там нет Изменено 20 октября, 2020 пользователем Юнга
Олег6 Опубликовано 20 октября, 2020 Опубликовано 20 октября, 2020 @EVlzh69 нашел, познавательно. У меня такой же, по наводке Pole, а я и не знал, что насос такой продвинутый. Кажется, у инженеров это называется - статор и ротор герметично разделены. 01.11.2019 в 18:51, EVlzh69 сказал: есть уплотнение от протечек небольшая резинка между упором крыльчатки и корпусом, Сюда силикон и будет почти пищевой на наших температурах. @EVlzh69 нашел, познавательно. У меня такой же, по наводке Pole, а я и не знал, что насос такой продвинутый. Кажется, у инженеров это называется - статор и ротор герметично разделены. 01.11.2019 в 18:51, EVlzh69 сказал: есть уплотнение от протечек небольшая резинка между упором крыльчатки и корпусом, Сюда силикон и будет почти пищевой на наших температурах.
Юнга Опубликовано 20 октября, 2020 Опубликовано 20 октября, 2020 3 минуты назад, Олег6 сказал: Кажется, у инженеров это называется - статор и ротор герметично разделены. У инженеров это называется "с мокрым ротором". Насос такой конструкции установлен во всех стиральных машинках - автоматах, он выкачивает жидкость из бака. 4 минуты назад, Олег6 сказал: 01.11.2019 в 18:51, EVlzh69 сказал: есть уплотнение от протечек небольшая резинка между упором крыльчатки и корпусом, Сюда силикон и будет почти пищевой на наших температурах. Вопрос герметизации вала на вакууме может так просто и не решится. Уплотнение должно быть торцевым керамическим - это проверено, работает.
EVlzh69 Опубликовано 21 октября, 2020 Опубликовано 21 октября, 2020 7 часов назад, Юнга сказал: Вопрос герметизации вала на вакууме может так просто и не решится. Уплотнение должно быть торцевым керамическим - это проверено, работает. @Олег6 нашёл моё раннее сообщение в котором есть фото разобранного насоса. посмотри, и вопрос снимется.
Олег6 Опубликовано 21 октября, 2020 Опубликовано 21 октября, 2020 @EVlzh69 Еще насчет насосика: Цилиндр, разделяющий мокрый ротор и сухой статор, он ведь может прогнуться внутрь под разряжением и заклинить ротор. Сделали ли его товарищи с запасом.. только эксперимент покажет.
Asus Опубликовано 21 октября, 2020 Опубликовано 21 октября, 2020 (изменено) 20 часов назад, Юнга сказал: Абсолютно не согласен. Николай, ты перепутал энергию с мощностью. 20 часов назад, serv сказал: С чего ты взял, что мощности при испарении с псевдокипением надо подводить меньше? Сергей, на самом деле меньше, по той же причине что и выше. Не стоит путать мощность (или температуру перехода) с энергией на испарение одного 1кг веществ с разной молярной массой. И ещё нужно учесть, какая львиная часть энергии тратится на перенос этанола в массе воды. Грубо говоря: чтобы выпарить один грамм этанола, мы кипятим десять граммов воды в браге. * По поводу баланса подачи браги и отвода барды → можно использовать периситальтический насос с двумя одинаковыми головками, производительностью не более 20л/час, из расчёта 10% браги. Изменено 21 октября, 2020 пользователем Asus
Юнга Опубликовано 21 октября, 2020 Опубликовано 21 октября, 2020 (изменено) 4 часа назад, EVlzh69 сказал: @Олег6 нашёл моё раннее сообщение в котором есть фото разобранного насоса. посмотри, и вопрос снимется. Ты прав, вопрос снимается. Изменено 21 октября, 2020 пользователем Юнга
Юнга Опубликовано 21 октября, 2020 Опубликовано 21 октября, 2020 (изменено) 1 час назад, Asus сказал: Николай, ты перепутал энергию с мощностью. Да, вроде бы не перепутал 21 час назад, Юнга сказал: количество теплоты(затраты энергии) Q=q*m(кДж), где q - удельная теплота парообразования вещества(кДж/кг). 21 час назад, Юнга сказал: Q=Р*t(кВт*час), где Р, кВт*час- мощность, t, час - время. В какой из формул перепутал энергию с мощностью? Да есть неточность в единицах измерения мощности(опечатка, исправлю) "-кВт*час", а нужно читать-кВт, но в формулах ошибки нет. Изменено 21 октября, 2020 пользователем Юнга
POLE Опубликовано 21 октября, 2020 Автор Опубликовано 21 октября, 2020 2 часа назад, Олег6 сказал: Еще насчет насосика я сжег один такой. Забился тв. включениями в браге и перегрелся. Обмотка выгорела. Нагревается прилично. Как самовсос не тянет. При малейшем пузырьке крыльчатка начинает бешено вращаться и поток ослабевает или прекращается. Обратный клапан может помочь, но он обладает сопротивлением на открытие. На вакууме может быть критично. Поэтому лучшее расположение насоса - внизу куба, чтобы был подпор столбом браги и без обратного клапана. @Юнга уже советовал.
Юнга Опубликовано 21 октября, 2020 Опубликовано 21 октября, 2020 2 минуты назад, POLE сказал: При малейшем пузырьке крыльчатка начинает бешено вращаться и поток ослабевает или прекращается. При разрыве потока жидкости во всасывающем трубопроводе любого центробежного насоса возникает кавитация, что приводит к быстрому разрушению рабочих колёс и спрямляющих аппаратов насоса. Причиной этому явлению может служить подсасывание воздуха или газа, или газирование жидкости. Вот поэтому в предлагаемом порядке действий я и предложил сначала дегазировать брагу, а потом включать циркуляционный насос. 14 часов назад, Юнга сказал: Если насос расположен выше уровня браги, то я рассматриваю такую последовательность твоих действий: Залил брагу в куб. Смонтировал насос и залил его брагой. Снизил давление в кубе и дегазировал брагу. Нагрел брагу до температуры кипения. Включил циркуляционный насос
POLE Опубликовано 21 октября, 2020 Автор Опубликовано 21 октября, 2020 (изменено) 3 минуты назад, Юнга сказал: Причиной этому явлению может служить подсасывание воздуха или газа, или газирование жидкости. Вот поэтому в предлагаемом порядке действий я и предложил сначала дегазировать брагу, а потом включать циркуляционный насос. Там нехило все греется. Может и вскипать брага. В этом отношении перистальтический насос лучше использовать. Изменено 21 октября, 2020 пользователем POLE
Юнга Опубликовано 21 октября, 2020 Опубликовано 21 октября, 2020 6 часов назад, POLE сказал: В этом отношении перистальтический насос лучше использовать. Оно то, конечно - да, но у Евгения нет перистальтического насоса(пока-нет, но все предпосылки к созданию оного есть, @EVlzh69 надумаешь делать - помогу), поэтому надо пробовать центробежным насосом.
EVlzh69 Опубликовано 21 октября, 2020 Опубликовано 21 октября, 2020 Непрерывный Вакуумный Перегон. перечитывая ветку обратил на сообщение @Юнга , в котором он озвучил, что высота столба браги в моём кубе 40 см. и это 4кПа разницы в давлении между поверхностью и дном. По опыту знаю, что даже перепад/снижение давления в кубе на 0,2 кПа даёт существенное увеличение кипения. Если к примеру в моём ПВК с заполненной на 10 см. рубашкой организовать забор браги с точки слива и подавать нагретую у дна брагу насосом в некую почти горизонтальную трубу, то брага вскипит ещё по пути наверх. Дальше останется только отобрать пар и слить естественным путём барду в другую ёмкость. Идея в том, что бы использовать разницу давлений и соответственно температур в разных слоях браги в кубе. Можно ПВК вообще под атмосферой греть и подавать брагу с нужной температурой в вакуум на испарение. но тут нужен постоянно работающий вак. насос с подходящей производительностью. про разные ёмкости, насосы и т. п. можно подумать и усовершенствовать. видится такой конструктив трубы для испарений : сама труба диаметр к примеру 100 мм. лежит почти горизонтально, в неё вставлен сектор (чашей вверх) трубы поменьше ~75 мм не по центру, а вплотную в боковой стенке, над этим сектором распологается то на чём будет конденсироваться пар. И барда и пар будут стекать к одному торцу большой трубы испарителя, но на разных этажах.
Юнга Опубликовано 21 октября, 2020 Опубликовано 21 октября, 2020 1 час назад, EVlzh69 сказал: видится такой конструктив трубы для испарений Интересно, но хотелось бы небольшой эскизик для правильного восприятия идеи.
EVlzh69 Опубликовано 21 октября, 2020 Опубликовано 21 октября, 2020 Только что, Юнга сказал: Интересно, но хотелось бы небольшой эскизик для правильного восприятия идеи. с рисованием у меня беда. не знаю как не знаю где. попробую на пальцах : смотрим в торец трубы диаметром 100мм и видим где то на 1/3 от низа, сектор трубы поменьше расположенный чашой (горбом вниз) прислонённый к боковой стенке. Над ним трубки конденсатора что бы с них стекало и попадало в сектор. Далее по нижнему этажу барда стекает по естественному уклону в сторону торца трубы испарителя откуда по штуцеру и шлангам попадает куда нам нужно. Дистиллят по своему этажу таким же способом в приёмную ёмкость.
Юнга Опубликовано 21 октября, 2020 Опубликовано 21 октября, 2020 Только что, EVlzh69 сказал: сектор трубы Сектор- это часть круга между двумя радиусами и дугой между ними(как правило плоская фигура, двухмерная), а труба - это цилиндр(объёмная фигура, трёхмерная), бывает и трёхмерный сектор, но это сектор диска или шара. Сектора трубы не бывает, потому и не пойму на словах что ты имеешь ввиду. Может попробуешь изобразить?
EVlzh69 Опубликовано 21 октября, 2020 Опубликовано 21 октября, 2020 (изменено) 6 минут назад, Юнга сказал: Сектора трубы не бывает, потому и не пойму на словах что ты имеешь ввиду. трубу распилить вдоль на 2 части, одну часть взять и засунуть в трубу бОльшего диаметра, расположить как описал выше. Сектор имелся в виду условный, две точки на окружности растояние между которыми удовлетворяет нашим требованиям. . Изменено 21 октября, 2020 пользователем EVlzh69
Юнга Опубликовано 21 октября, 2020 Опубликовано 21 октября, 2020 40 минут назад, EVlzh69 сказал: смотрим в торец трубы диаметром 100мм и видим где то на 1/3 от низа, сектор трубы поменьше расположенный чашой (горбом вниз) прислонённый к боковой стенке. Так?
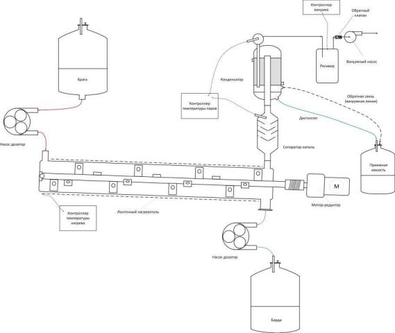
POLE Опубликовано 22 октября, 2020 Автор Опубликовано 22 октября, 2020 13 часов назад, EVlzh69 сказал: видится такой конструктив трубы для испарений Этому рисунку три года. Вставлял в наши ветки и на ХД. Все мысли крутятся по кругу. 1 2
Рекомендуемые сообщения
Для публикации сообщений создайте учётную запись или авторизуйтесь
Вы должны быть пользователем, чтобы оставить комментарий
Создать аккаунт
Зарегистрируйте новый аккаунт в нашем сообществе. Это очень просто!
Регистрация нового пользователяВойти
Уже есть аккаунт? Войти в систему.
Войти