вагон-самогон Опубликовано 12 апреля, 2016 Опубликовано 12 апреля, 2016 Добрый день коллеги! Предлагаю тем у кого есть куб со встроенным парогенератором рассказать об опыте эксплуатации данного куба, о конструктивных особенностях и т.д.
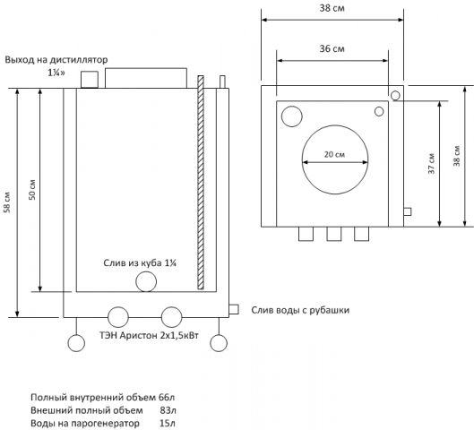
вагон-самогон Опубликовано 12 апреля, 2016 Автор Опубликовано 12 апреля, 2016 Раз тема новая опишу свой проект куба который планирую размещать в квартире площадью 32м2. в нем же сбраживать сразу по 10кг и перегонять. Куб на перегон размещать в ванной рядом со стиральной машиной, хранить за шкафом. Габарит куба выбран не случайно так как размещение горизонтального не представляется возможным, поэтому решил задумать вертикальный куб. остальное на картинке
Амбал Опубликовано 12 апреля, 2016 Опубликовано 12 апреля, 2016 А в чем могут быть особенности, кроме короткого паропровода и лишнего геморроя, связанного с размерами, при обслуживании объединённого устройства? Выложенное устройство называется пароводяной котел (ПВК).
вагон-самогон Опубликовано 12 апреля, 2016 Автор Опубликовано 12 апреля, 2016 (изменено) А в чем могут быть особенности, кроме короткого паропровода и лишнего геморроя, связанного с размерами, при обслуживании объединённого устройства? Выложенное устройство называется пароводяной котел (ПВК). У тебя есть такой куб? Если почитать тему про ПВК то станет понятно что в ПВК пар из рубашки не подается в затор, система замкнутая и работает под некоторым давлением. В кубе со встроенным парогенератором давление в рубашке практически отсутствует пар свободно через барботер подается в внутренний бак дополнительно подогревая содержимое. Все давление в парогенераторе это высота жидкости через которую пар пробивается, а это не больше 50см водного столба зависит от конкретной конструкции куба. Изменено 12 апреля, 2016 пользователем вагон-самогон 1
Амбал Опубликовано 12 апреля, 2016 Опубликовано 12 апреля, 2016 (изменено) У тебя из рисунка не видно что пар подаётся в куб. Барботер (или устройство его замещающее) не изображен. ПВК и отдельно "паровозик" у меня имеется. Я лично большого отличия не вижу. Подключил паропровод с барботером вместо обратного клапана и вот оно "счастье", даже дырок дополнительных делать не надо. Только не вижу очереди стать счастливым. Изменено 12 апреля, 2016 пользователем Амбал
вагон-самогон Опубликовано 12 апреля, 2016 Автор Опубликовано 12 апреля, 2016 У меня нету ПВК и нету Куба с встроенным парогенератором, поэтому я прошу людей владеющих кубом со встроенным парогенератором рассказать об опыте эксплуатации данного устройства, обсудить мою конструкцию, дать совет, или критику обоснованную. ПВК есть в другой теме.
Амбал Опубликовано 12 апреля, 2016 Опубликовано 12 апреля, 2016 (изменено) Так прежде чем обсуждать хотелось понять как пар подается в куб, есть ли уровень в парогенераторе, наличие подрывных клапанов, как выполнена защита, измерения и т.д. я прошу ..., обсудить мою конструкцию, дать совет, или критику обоснованную.Я бы предусмотрел возможность режима чисто ПВК, включая охлаждения затора, добавки будут не большие и не габаритные. Изменено 12 апреля, 2016 пользователем Амбал
вагон-самогон Опубликовано 12 апреля, 2016 Автор Опубликовано 12 апреля, 2016 (изменено) Так прежде чем обсуждать хотелось понять как пар подается в куб, есть ли уровень в парогенераторе, наличие подрывных клапанов, как выполнена защита, измерения и т.д. Я бы предусмотрел возможность режима чисто ПВК, включая охлаждения затора, добавки будут не большие и не габаритные. Пар подается из рубашки через шланг (нержавеющую гофру, трубку) в барботер который заштрихован, из барботера в затор. Про подрывные клапаны и прочее ты как владелец ПВК мне советы должен давать, а не спрашивать. Повторю тема про куб со встроенным парогенератором, и режимы ПВК здесь неуместны. Если есть аргументированные советы то милости просим, или извиняйте... Изменено 12 апреля, 2016 пользователем вагон-самогон
ВОблин Опубликовано 12 апреля, 2016 Опубликовано 12 апреля, 2016 [b][member=Амбал][/b], Александр ты слишком много пишешь. Больше читай, а то ты мне Бухарикова напоминаешь... КВП - достойная система. КВП - естественное перемешивание, нет необходимости продувать рубашку и каша никогда не подгорит, но надо следить за расходом воды рубашки. ПВК можно одним движением руки сделать КВП и наоборот... 2
иванн Опубликовано 12 апреля, 2016 Опубликовано 12 апреля, 2016 [b][member=вагон-самогон][/b], на ХД тема есть посмотри http://forum.homedistiller.ru/index.php?topic=125792.0#msg12310248
Shamilich Опубликовано 12 апреля, 2016 Опубликовано 12 апреля, 2016 Фотография из телефона, под рукой оказалась. Угадайка ... Смотреть надо на ящик на заднем плане ... . На переднем плане пробная заготовка змеевика (подготовка к летнему сезону) на фоне бывшей кухонной мебели. Ящик на колесиках, в ящике куб. Крышка съёмная. Стоит у туалета и ванны, поближе к силовой розетке и канализации. Куб литров на 45-50, паропровод - силиконовая трубка 10 или 12 мм, Выход на аппарат - 1 дюйм, слив - тоже 1 дюйм, ТЭН один на 3 кВт, Регулятор РМ-2-16. Аппарат - перевернутый "димрот" из 3 метров 6 мм трубки. Защита по давлению и разрежению - трубка связи с атмосферой из нижней зоны пароводяного отсека.
вагон-самогон Опубликовано 12 апреля, 2016 Автор Опубликовано 12 апреля, 2016 Иван спасибо, я знаю про существование темы на ХД, но эта тема здесь и обсуждение работающих кубов и способов работы с ними хочется видеть в этой теме. Пока что только флуд и ни чего более не видно.
Glog Опубликовано 12 апреля, 2016 Опубликовано 12 апреля, 2016 Мне тоже интересно. Лелею мыслю сделать куб, объединенный с парогенератором. Только по 2-м стенкам. Снизу и сзади. Боковые оставить в один слой. Мое мнение по поводу аристоновских тенов для использования в этой системе отрицательное. Лучше использовать U образные тэны. Они сами собой напрашиваются во внутреннее пространство под нижней стенкой куба. Для замены и обслвживания (снятия накипи) сделать съемный прямоугольный фланец на 6-8 болтах. Сливаем воду из рубашки. Отворачиваем болты. Вытаскиваем оба тэна на фланце. Цена таких хороших тэнов 300 руб Можно найти и медные и нержавеющие. В отличии от аристоновских. Хорошие оригинальные стоят больше 1 тыр. По поводу ПВК. (Какие то все ПВКисты агрессивные.) В отличии от ПВК такая железка более бюджетная. Легче и быстрее в изготовлении. Проще вваривать слив барды и датчики температур. Не нужно проходить 2 стенки. Нужно будет предусмотреть место под датчики уровня автоматики автоподачи воды. И сделать небольшой отсек подогрева для подачи холодной воды, чтобы не прекращалось парообразование. Вот такая ИМХА. ЗЫ. КВП у меня нет, потому не принимайте мои хотелки близко к сердцу. ЗЫЫ. Но будет обязательно. Потому тема интересна, давайте обсуждать. Не нужно посылать не ХД. Не все могут туда попадать. Готовые китайские автоматики подачи воды в парогенератор. http://ru.aliexpress.com/item/DF-96A-Auto-water-level-switch-Limit-switch-Auto-water-level-controller-with-3-probes/631065163.html http://ru.aliexpress.com/item/C61F-GP-level-relay-C61F-GP-AC220V-water-level-controller-switch-pump-automatically-switches-with-base/1739034390.html?detailNewVersion=2 Ох уж эти сказочки! Ох уж эти сказочники!
capsolo Опубликовано 12 апреля, 2016 Опубликовано 12 апреля, 2016 (изменено) [member=вагон-самогон], дорогой у тебя получается. У меня дно и одна стенка рубашка. Норм все с мешалкой и греется и остужается. Сверху удобно иметь отдельный кран на 1/2 для вывода из рубашки воды, когда рубашкой охлаждаешь, чтобы не было крана на паропроводе. Нехорошо это. Когда идет охлаждение рубашкой вывод паропровода должен быть заглушен. Я так пару раз попадал, когда вода охлаждения из рубашки шла в затор. Очень было грустно. Один даже пришлось вылить. У меня есть еще тэн в куб для прямого нагрева и нижний слив, но это опционально. Широкий и низкий куб устойчивее стоит на бортике ванны когда его моешь, и еще его можно поставить на старый стул, чтобы если ты в одиночку занимаешься делами можно было после гонок в куб засунуть воду из душа и, размешивая, все самотеком запустить в каналью. С высоким и узким кубом такое не очень прокатит. Ставить есесно надо до наполнения куба и в зоне доступа канальи. Потом его уже не свернешь водиночку. Водичку подавать в рубаху можно в процессе, если заканчивается. Уровня я у тебя не вижу рубахи. Это маст хэв для любого парогена, иначе жди беды. На парогене в месте выхода из рубахи у меня навинчена группа безопасности. Тоже маст хэв для парогена. Так-то пар поступает в куб только при перегонке. При затирке его образуется мало. Нагрев идет только за счет теплообмена рубахи и куба. [member=Glog], Олег в большинстве случаев доливать воду в пароген не надо, ибо до кипения брага доходит практически вместе с рубахой, особенно если жидкая. Изменено 12 апреля, 2016 пользователем capsolo 2
geocem Опубликовано 12 апреля, 2016 Опубликовано 12 апреля, 2016 По поводу долива в пароген в процессе перегона солидарен с Антоном. У меня при перегоне 70 литров браги солод+крахмал при 6 киловаттах в парогене воды осталось почти полное ведро. Это в 100литровом кубе. Слив с рубашки на охлаждение тоже отдельным краном на 1/2" 1
Glog Опубликовано 12 апреля, 2016 Опубликовано 12 апреля, 2016 capsolo geocem А общий объем рубашки какой? Предполагаю куб 40*50*50. Объем 100 литров. Рубашка снизу и сзади по 5 см. 50*40*5=10*2=20 литров. И что? Хватит 10 литров вертикальной рубашки на задней стенке, чтобы выгнать из густой каши 25 литров сырца? 10 литров останется в нижней части с тэнами. Если так - весьма интересно. Ох уж эти сказочки! Ох уж эти сказочники!
geocem Опубликовано 12 апреля, 2016 Опубликовано 12 апреля, 2016 В таком кубе пароген начинает работать после 97-98 градусов в теле браги, поэтому расход воды небольшой. До этой температуры греет одна рубашка. Но это справедливо только если куб заполнен почти полностью. Я пробовал в 100 литровом перегонять 30 литров браги, так барботер начал пробулькивать гораздо раньше. Наверное с 93-94. 1
capsolo Опубликовано 12 апреля, 2016 Опубликовано 12 апреля, 2016 (изменено) Факт остается фактом: пока у одних греется пароген у нас греется брага. А с пвк ценник вниз в два раза, плюс работа на атмосферном давлении. Разваривание да, кривее выходит, чем на ПВК, но круче, чем на парогене. По количеству попадающей в куб воды. Изменено 12 апреля, 2016 пользователем capsolo 1
Виктрыч Опубликовано 12 апреля, 2016 Опубликовано 12 апреля, 2016 (изменено) Вот интересная конструкция от товарищей с юговостока. Изменено 12 апреля, 2016 пользователем Виктрыч Дорога к обеду ложка, К ночи дорог унитаз.
Glog Опубликовано 12 апреля, 2016 Опубликовано 12 апреля, 2016 интересная конструкция Барботер сложный. Мыть плохо. Надо делать легкосъемным, чтобы вытаскивать и отскабливать от каши. ИМХО. Мысль интересная паропровод наружу не выводить. Ох уж эти сказочки! Ох уж эти сказочники!
Kasperys Опубликовано 12 апреля, 2016 Опубликовано 12 апреля, 2016 (изменено) а паропровод у них на клампе - снять легко. Вроде один из участников ХД собирался делать по подобию, только хотел обратный клапан на всякий случай воткнуть в паропровод. есть еще варианты: паровой тен: http://ru.aliexpress.com/store/product/2015-New-Technology-30L-High-Quality-Wine-Distillation-Boiler-Brewing-Equipment-Vodka-Maker-Brew-Alcohol-Whisky/1500315_32444423445.html рубашка по частям (отдельно по дну - отдельно стенки): http://ru.aliexpress.com/store/product/Electric-Steam-Heating-Stainless-Steel-Home-Hooch-Wine-Brewing-Equipment-155L-Thicken-Bottom-Distillation-Boiler/1500315_32550042256.html Изменено 12 апреля, 2016 пользователем Kasperys
Виктрыч Опубликовано 13 апреля, 2016 Опубликовано 13 апреля, 2016 Барбатер напрашивается сделать еще и крутящимся. Допустим сопла вбок 1 Дорога к обеду ложка, К ночи дорог унитаз.
Glog Опубликовано 13 апреля, 2016 Опубликовано 13 апреля, 2016 хотел обратный клапан на всякий случай воткнуть в паропровод. Если клапан находится снаружи - стучит, гремит, воет пока затор до 80 гр.С. не прогреется. Если внутри будет предполагаю может тоже стучать. А может и нет. Затор то до 80 раньше нагреется, чем пар пойдет. Интересно. Ох уж эти сказочки! Ох уж эти сказочники!
Kasperys Опубликовано 13 апреля, 2016 Опубликовано 13 апреля, 2016 [b][member=Glog][/b], насколько помню планировалось 2 клапана: один внешний от разряжения на генерирующую часть, второй во внутрь, чтобы не получить засасывание барды при остановке работы.
capsolo Опубликовано 13 апреля, 2016 Опубликовано 13 апреля, 2016 (изменено) Изменено 13 апреля, 2016 пользователем capsolo 2
Рекомендуемые сообщения
Для публикации сообщений создайте учётную запись или авторизуйтесь
Вы должны быть пользователем, чтобы оставить комментарий
Создать аккаунт
Зарегистрируйте новый аккаунт в нашем сообществе. Это очень просто!
Регистрация нового пользователяВойти
Уже есть аккаунт? Войти в систему.
Войти