Сережкин Опубликовано 19 марта, 2017 Опубликовано 19 марта, 2017 Тоже интересуюсь методами избавления от изиков, читал, смотрел про этот буфер, но может пропустил, уж простите, - есть лабораторные подтверждения дельности данного конструктива? Было - стало, так сказать? Органолептический вариант в данном случае я бы не применял, слишком много органолептики разной в дистилляте. У меня сомнения в коэффициенте ректификации. Как бы так рассуждаю, - на наружном контуре сивуха (изики, простите) скапливается, сливается на тарелки, но по колонне не размазывается, учитывая что она встречается с паром, по сути обедненным спиртом (ведь речь про то, что значительная часть спирта уже испарилась в отбор, прием польского буфера)...В данной теме речь конкретно про дистиллят. Сделать конечно такой конструктив можно, но не хочется тратить время-деньги, это ресурс понятный, хочется на чужом опыте объективно услышать опытное мнение. Спасибо. И хотелось бы найти товарищей-единомышленников по "белой" схеме. Мне не хочется держать напиток в бочке. Мне хочется получить благородный белый напиток, так сказать отдохнувши на стол... Не люблю я этот дуб
ВОблин Опубликовано 19 марта, 2017 Автор Опубликовано 19 марта, 2017 (изменено) Эта методика - промежуточный вариант, следующий логический шаг ее развития - это отВОбливание разработанная АлексеемТ... http://forum.grainwine.info/index.php/topic/1016-poluchenie-distilljata-za-odin-otbor-otvoblivan/ Изменено 19 марта, 2017 пользователем ВОблин
Kasperys Опубликовано 19 марта, 2017 Опубликовано 19 марта, 2017 [member=Сережкин], изи и прочие хвостовые обладают ярко выраженным вкусом и запахом (((( - поэтому в данной ситуации на органолептику можно ориентироваться. Насчёт благородного напитка: химию не обманешь. Если для преобразования хвостовых нужны г, то они нужны :).
ВОблин Опубликовано 21 марта, 2017 Автор Опубликовано 21 марта, 2017 Но речь про объективную доказательную базу - без устройства и с устройством. Тогда и больше половины споров закроется... чужими руками каштаны из огня выгребать все мастера! последнее время все споры на форумах ни что иное, как провокации на проведение необходимых замеров кем-то другим... Сами , Други, сами. на здоровье. Добрый ты человек, Вячеслав! мужичок либо заливает, либо у него не те хвосты которые мы с тобой знаем...
Сережкин Опубликовано 21 марта, 2017 Опубликовано 21 марта, 2017 Чужими руками... Ну так рассуждать - и форума бы не было, была бы переписка десятка человек между собой, вероятно... Понятно, есть люди больше знающие, есть меньше. Есть люди по 200л гонят, а есть по 20л. Это не провокации, я просто интересуюсь, как человек у которого опыта меньше, у других, у которых опыта больше. Никакой провокации. Мужичок не заливает - магазинная незамерзайка, в составе изопропиловый спирт. На этикетке так, запах похож. Брызгать пришлось не часто, вот и уездил всю зиму. И опять же все не по теме
ВОблин Опубликовано 21 марта, 2017 Автор Опубликовано 21 марта, 2017 Если ты можешь нормально переносить запах хвостов ,значит у тебя хвостов почти нет. не спорь.
slava-61 Опубликовано 26 марта, 2017 Опубликовано 26 марта, 2017 Если ты можешь нормально переносить запах хвостов ,значит у тебя хвостов почти нет. не спорь. Хвосты бывают разными, от РК высокой концентрации и дистилляции, естественно второе переносится куда приятнее. Валера тебе вопрос, ты с буфером перегонял зерновую брагу паром или пвк, с возвратом флегмы? Если я перегоняя паром поставлю буфер над ним 4 колпачковые тарелки, получится что нить? - Собери три флуда,два мата,одно оскорбление модератора и получи Золотой Бан по IP.
ВОблин Опубликовано 26 марта, 2017 Автор Опубликовано 26 марта, 2017 Да. Все получиться без проблем если в буфере будет 3- 6тт. Запас в чане сделай по- больше для приходящей воды. На пвк конечно удобней.
Виктрыч Опубликовано 26 марта, 2017 Опубликовано 26 марта, 2017 Польский буфер не умеет сдозировать колличество промежуточных в отбор. Он либо их держит пока может. Либо опрокидывается как катамаран и все в отбор. Т.е заточен под получения спирта при первом перегоне. Дистиллят же предполагает иметь каждой твари по паре для вкуса и прочей органолептики. Сие отрегулировать ПБ не реально. Большое ИМХО. Дорога к обеду ложка, К ночи дорог унитаз.
slava-61 Опубликовано 26 марта, 2017 Опубликовано 26 марта, 2017 Запас в чане сделай по- больше для приходящей воды. В 140 литровый куб заливаю 100 л браги, должно хватить. Буфер будет литров на 4-5, посмотрю ещё что с бачка выйдет, завалялся в закромах. Надеюсь то что выйдет и результат понравится. Сколько уже железа валяется не востребованного((( Он либо их держит пока может. Либо опрокидывается как катамаран и все в отбор. Валера а в чём заключается опрокидывание катамарана? Не своевременный слив с него дерьма или? В буфер ставим либо тарелки либо насадку для поддержания катамарана на плаву, или я не прав? В подсознании понимаю что он мне как бы не нужен, но экспериментировать уже не с чем)) А вдруг что то выйдет. - Собери три флуда,два мата,одно оскорбление модератора и получи Золотой Бан по IP.
Виктрыч Опубликовано 26 марта, 2017 Опубликовано 26 марта, 2017 Работа правильного буфера. Физика процесса: В устоявшемся режиме основная часть промежуточных сидит в первой трубе и не рыпается. Состав жижи буфера охлаждает первую трубу и наблюдается некоторый баланс. Физики не выше середины трубы. Просочившиеся на общую погоду повышенного объёма буфера не влияют. Флегмовым сбрасываются назад. Но в какой то момент спирта не хватает. Труба начинает сифонить побольше. Состав жиди буфера суток сдвигается. Что приводит к ещё большему сифу. Положительная обратная связь. И как триггер буфер занимает другое крайнее положение. Выпревывае все в колонну. А как она сдержит х.з. А не колонна? Сори за Т9. задолбал каждое слово править. 1 Дорога к обеду ложка, К ночи дорог унитаз.
slava-61 Опубликовано 26 марта, 2017 Опубликовано 26 марта, 2017 А как она сдержит х.з. А не колонна? Что то держит буфер, далее то что над ним. мои 4 тарелки дают более 90, более чем уверен то что может и изрыгнёт буфер удержит. Надо пробовать. Набил вчера трубу с тарельчатой колонки насадкой 4мм, труба 45 см, залил мучного сырца с под нбк, перегнал и получил с отбором более литра в час 95,16 недоспирта, Сильно укрепляет для получения хорошего диста. - Собери три флуда,два мата,одно оскорбление модератора и получи Золотой Бан по IP.
Виктрыч Опубликовано 26 марта, 2017 Опубликовано 26 марта, 2017 Такой момент. При опрокидывании в буфере концентрация промежуточных возрастет почти мгновенно 10 раз если его объём в десять раз меньше куба. Скачком. Как там говорится: Если реакция есть то детей не будет. Во имя чего? Не годится буфер под дистиллят. Ну если только из спортивного интереса. Имхо. 1 Дорога к обеду ложка, К ночи дорог унитаз.
snab Опубликовано 26 марта, 2017 Опубликовано 26 марта, 2017 Не годится буфер под дистиллят. Так и изначально он не под дист заточен «Не стыдно чего-нибудь не знать, но стыдно не хотеть учиться»
slava-61 Опубликовано 26 марта, 2017 Опубликовано 26 марта, 2017 Так и изначально он не под дист заточен А мы ведь его переточим, всему своё время. ИмХО на его основе и сепаратор сделан. - Собери три флуда,два мата,одно оскорбление модератора и получи Золотой Бан по IP.
snab Опубликовано 26 марта, 2017 Опубликовано 26 марта, 2017 сепаратор Слав... Ну чудо ж чудное, этот сепаратор. Ну, блин, нужны тебе ароматы, сделай ОтВо разок, ведь ниочем устройство. Да что я говорю, Леху спроси, ну правда, ему то, надеюсь, поверишь? Тем более, насколько я понял, буфер у тебя есть, т.е. уо готовый в принципе. «Не стыдно чего-нибудь не знать, но стыдно не хотеть учиться»
slava-61 Опубликовано 26 марта, 2017 Опубликовано 26 марта, 2017 Леху спроси, Я всем верю но больше своему обонянию и утреннему состоянию. Вера - это хорошо. Тем более, насколько я понял, буфер у тебя есть, Есть, пока всё в железе, чуток токарки и сварки. В раздумьях. И есть метода ГабиЭля, щас отгоняю всё с первым телом на РК и думаю, обеднит или нет напиток. Второе тело 45 заходит 0,5 отлично. - Собери три флуда,два мата,одно оскорбление модератора и получи Золотой Бан по IP.
snab Опубликовано 26 марта, 2017 Опубликовано 26 марта, 2017 [member=slava-61], ОтВо- тоже, что и метод Габриэля, только позволяет сделать тоже, но за один заход. 1 «Не стыдно чего-нибудь не знать, но стыдно не хотеть учиться»
Сережкин Опубликовано 4 апреля, 2017 Опубликовано 4 апреля, 2017 В выходные заморочился, сделал стекляшку-микробуфер (перевертыш - перевернуть будет царга пастеризации), сегодня пробовал сахарную перегонять, как раз подошла. У меня объемы небольшие, так что может где погрешности. Итого 8л сахарной. Примерно прикинул 0,9л АС. Отобрал 1.головы около 60мл (больше по запаху, с небольшим запасиком). Слив выключен 2 тело 380мл -400мл. Запах отличный, точнее на мой нос никакого запаха. Как после второго перегона. При этом откапывал около 60мл со дна стекляшки. Что характерно, когда делал отбор тела, в стекле все кипело, температура на дефлегматоре стабильная, около 77,8 показывает (врет собака, вероятно, но я ориентировался на изменение), нагревалось от пара внутри трубки. После кипеть в стекле перестало и температура на дефлегматоре поднялась примерно до 80,3 градусов. Открыл слив, слил все до дна, у меня там около 100мл. На запах - воняет. Ощутимо, но терпимо. Так пахнут остатки в кубе при сливе. 3. Открыл отбор на полную и слил около 1л примерно 38%. Остаток пахнет немного тем, что сливал из стекла 4. Барду вылил. Барда не пахла, видимо все вышло. 5. Все что налилось за оставшееся время (совсем не много, видимо царга от воздуха охлаждается и чуток течет обратно, - открыл отбор на полную и особо ничего не должно было возвратиться) слил отдельно и понюхал. Запах понравился, как ни странно, но не понял чем пахнет. Потом при случае еще раз проверю Мои маленькие выводы. Тело 1 - по мне очень даже приличное, оставил. Тело в конце оставлю на второй перегон. Переверну свою стекляшку на пастеризацию, попробую завтра-послезавтра. перегонка тело 1. В стекле все бурлит тело 2. В стекле все успокоилось, наполняется еле еле
Сережкин Опубликовано 10 апреля, 2017 Опубликовано 10 апреля, 2017 /Поубавлю восторга... Постояло тело пару-тройку дней, запах все-таки присутствует. В итоге пустил на второй перегон все. Так же отбирал во время отбора тела - хвосты, через нижний отбор. Все-таки польза есть от нижнего слива, но, видимо, поскольку я перегонял сахарную, то кроме спирта особо из нее и брать то нечего, а царга у меня невысокая, насадка там крупная, укрепление среднее, видимо и пролетают вместе со спиртом ненужные примеси...
Максим! Опубликовано 30 октября, 2017 Опубликовано 30 октября, 2017 вчера после погона солодовой сливал с буфера каку скажу я вам это издец товарищи хим атака
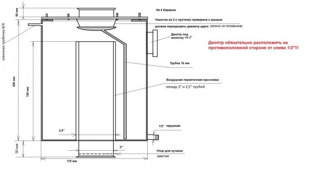
sechevoy Опубликовано 4 октября, 2018 Опубликовано 4 октября, 2018 (изменено) Буфером пользуюсь давно. Через меня уже третий проходит (с теплоизолированным огрызком). Всегда использовал его при ректификации и пока не решался при однопроходной дистилляции. А сдерживает меня одно обстоятельство - это варка дрожжей продолжительное время. Во вложении чертёж, по которому мне делали буфер. Изменено 4 октября, 2018 пользователем sechevoy
denis_len Опубликовано 24 ноября, 2019 Опубликовано 24 ноября, 2019 (изменено) нет ну почему тема зависла? что нет так с отвобливанием? я спокойно с воздушной дефлегмацией воблирую изики на первом перегоне... результат получается "аля бабушкин" самогон но без средней вонючей фракции, "аля не вонючий" за 1 перегон многим нравиться начинать длительные попойки именно с такого сивушно не вонючего самогона.. Да его немного получается (я беру до 40 в струе на изабельной браге), но ведь остатки все равно не пропадают, все идет на ректификацию... сейчас проблема только одна: узел полного отбора - нет в продаже нашел замену, сивушный сепаратор от "добровара" со стаканом 200мл, а под ним ставлю Узел нижнего отбора П.с. белая схема, "проблемы варки дрожжей у меня нет, да и нет так долго все это... https://youtu.be/dfCZB0yEZ34 Изменено 24 ноября, 2019 пользователем denis_len
deen Опубликовано 29 мая, 2020 Опубликовано 29 мая, 2020 Воблин, все стало предельно ясно. 1) конструктивно необходимо сделать слив дерьма с буфера в куб, для режима отбора голов. 2) датчик в буфер 3) датчик в куб. Снимаем головы. Стабилизируем колону с буфером. И с небольшим укреплением жмем. Температура в буфере пошла вверх - стоп. 1
festival73 Опубликовано 26 сентября, 2023 Опубликовано 26 сентября, 2023 Здравствуйте, не совсем понял, после отбора голов и включения буфера, надо ли ждать заполнения буфера или сразу отбираем тело ?
Рекомендуемые сообщения
Для публикации сообщений создайте учётную запись или авторизуйтесь
Вы должны быть пользователем, чтобы оставить комментарий
Создать аккаунт
Зарегистрируйте новый аккаунт в нашем сообществе. Это очень просто!
Регистрация нового пользователяВойти
Уже есть аккаунт? Войти в систему.
Войти