Добровар Южный поток Опубликовано 22 января, 2015 Автор Опубликовано 22 января, 2015 Вадим, офигеть вы трубу загнуть умудрились)) или это из углов по 90гр. сваренои швы обработали? Всем привет. Макс это два отвода 90% сварил и обработал. Чтобы так согнуть идеально это навряд ли получиться под таким углом труба деформируется и станет эллипсом хоть ты ее заполняй или грей все рано идеально не получиться но согнуть можно. тел. 89654225555 "Южный поток"
Добровар Южный поток Опубликовано 25 марта, 2015 Автор Опубликовано 25 марта, 2015 (изменено) Всем привет. Тут вот идея в голове, сделать сухопарник типо тарельчатый. В виде тарелок применить шайбы с перфорацией как на фото. Как думаете будет эффект? Изменено 20 апреля, 2016 пользователем Добровар тел. 89654225555 "Южный поток"
Сэмогонщик Опубликовано 25 марта, 2015 Опубликовано 25 марта, 2015 (изменено) Вадим, обратись к Сергею, он может подсказать, как правильно сделать тарелки. http://forum.grainwine.info/index.php/topic/294-tarelchataia-kolonna-chudo-ili-zapadnaia-propaga/?p=6843 Но агрегаты они разные, тарелки для укрепления, сухопарник, у тебя, для сухофруктов. Изменено 25 марта, 2015 пользователем Сэмогонщик
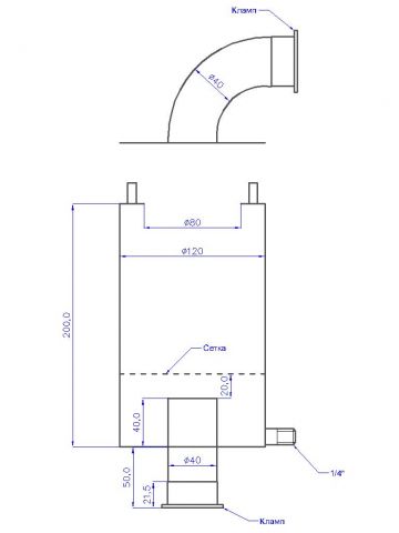
Добровар Южный поток Опубликовано 28 марта, 2015 Автор Опубликовано 28 марта, 2015 (изменено) Добрый вечер Сергей, и всем форумчанам. Как бы пояснить то что я хочу сделать, технически вижу вот только не могу пока понять эффективность данного девайса. Можно сказать что это получается типо тарельчатой колонны, но и не она. Посмотрите на фото нижняя часть то что я называю сухопарником состоит из тарелок там пять штук и между каждой расстояние 1.5 см. Верхний холодильник сделал не спиральный а стакан в варен. На днях буду тестировать хочу сделать такой же только без тарелок и посмотреть разницу. Расскажу по подробней к чему все это, хочу сделать боле доступный самогонный аппарат простой, и сердито! что бы на рынке был самый дешевый но не плохой а обычный дистиллятор. Изменено 20 апреля, 2016 пользователем Добровар тел. 89654225555 "Южный поток"
dim_dimych Опубликовано 28 марта, 2015 Опубликовано 28 марта, 2015 почитал эту ветку. Семгонщик, могу сказать о дедушке, который на видео предлагает сразу же карамелизацию. Она то делается, но не так как он говорит. Сразу ее никто не делает. Это делается в самом конце с коньяками. Да и подобие коньяка не получит он. Он предлагает разные добавки, которые к этому напитку не имеют ни малейшего отношения. А так, интересно. Можно использовать сухопарник. Я о посте на 1-й странице. Сорри.
Сэмогонщик Опубликовано 28 марта, 2015 Опубликовано 28 марта, 2015 Приветствую коллеги! Вадим, смотри. п1 Бюджетный вариант, это главная позиция. п2 Тарелки надо делать по расчетам. Твой вариант, как мне кажется, то что я видел эффективно работать не будет. Вообще тарелки это премиальный сегмент, надо привлечь спеца, рассчитать и сделать в стекле. В твоем варианте, самое эффективное или мочалки, или регулярная насадка. Сетка или мочалки будут эффективно бороться с брызгоуносом и слегка укреплять. Дешево и сердито. п3 Чтоб понять конструкцию холодильника нужен рисунок. [b][member=dim_dimych][/b], рад тебя слышать. Дедушка мне симпатичен.
dim_dimych Опубликовано 28 марта, 2015 Опубликовано 28 марта, 2015 Сергей, я просто сказал про него. Может даже для поддержания разговора.
ванечка Опубликовано 28 марта, 2015 Опубликовано 28 марта, 2015 [b][member=Добровар][/b], сварено аккуратно. однако я так и не понял из твоих пояснений для чего в сухопарнике тарелки? возврата как я понимаю нет. тарелки по диаметру не уплотнены. расчитываешь на работу крох дикой флегмы? или попытка снизить высоту за счет увеличения диаметра "псевдо сухопарника" с подобием тарелок? я не ерничаю и не стебаюсь. серьезно. пытаюсь понять замысел и для чего железка нужна.
Добровар Южный поток Опубликовано 29 марта, 2015 Автор Опубликовано 29 марта, 2015 [b][member=ванечка][/b], Ну почему же нет возврат должен быть я на это и надеюсь, тарелки по диаметру плотно. Рассчитываю что за счет тарелок будет возврат флегмы, рассчитываю что сивуха останется в котле и из за тарелок не подымется в холодильник. Вот я и сам хочу понять различие сухопарника простого, и с тарелками. В простом сухопарнике все понятно все осело в нем слил через кран и все. а вот тут надеюсь на возврат флегмы, и на лучшие качество самогона чем в обычном. [b][member=Сэмогонщик][/b], Сергей рисунок будет, по тарелкам тебя услышал. По мочалкам понятно если их ставить то даже дешевле будет себестоимость, это надо делать тестировать что лучше, и эффективней. тел. 89654225555 "Южный поток"
Сэмогонщик Опубликовано 29 марта, 2015 Опубликовано 29 марта, 2015 (изменено) рассчитываю что сивуха останется в котле и из за тарелок не подымется в холодильник. Вадим, скажу по секрету, сивуха лезет у меня в колонне, а там больше 40ТТ. Давай разговаривать честно. Фото твоего девайса с тарелками, предполагает качественный сухопарник, не более. И хоть туда воткни останкинскую башню, от сивухи не избавишься. Поэтому что не делай, самый оптимальный вариант, описаный выше. Сетка или мочалки будут эффективно бороться с брызгоуносом Кроме брызгоуноса, девайс такого размера ничего не сделает. Уже сложилась практика и тарельчатых колонн и насадочных. Что можно в такую махапульку, как у тебя, запихнуть, чтоб получилось чудо? ПС нарисуй холодильник. Изменено 29 марта, 2015 пользователем Сэмогонщик
Добровар Южный поток Опубликовано 29 марта, 2015 Автор Опубликовано 29 марта, 2015 [b][member=Сэмогонщик][/b], Сергей я на больше и не рассчитываю мне нужен качественный сухопарник и не боле. Первое что он сделает это защитит от брызгоуноса, второе все равно я думаю тарелки хоть какой то эффект должны дать пока не знаю, надо тестировать. Я и не отрицаю что возможно это все порожняк и толку не будет. тел. 89654225555 "Южный поток"
Сэмогонщик Опубликовано 29 марта, 2015 Опубликовано 29 марта, 2015 Вот сетка, покупал в Электростали примерно с год назад, там ее делают. Зарекомендовала себя хорошо, пробовал. Надо сделать сухопарник 300мм длинной с сеткой. Дешево и сердито. Нет брызгоуноса и не большое укрепление. В твоем холодильнике как с возвратом флегмы? Не знаю конструкции.
ванечка Опубликовано 29 марта, 2015 Опубликовано 29 марта, 2015 [b][member=Добровар][/b], Вадим говорено сто тысяч раз. не вся бяка что попадает в сухопарник там и остается. этоя к твоему мнению сухопарнике все понятно все осело в нем оно ошибочно. в прочем к теме не относится :) на мой взгляд ты пытаешься скрестить ужа с ежом. если это сухопарник то зачем в него что то пихать. если это не сухопарник, то поставил бы одну колпачковую тарелку если хочешь изысков :) толку больше. [b][member=Сэмогонщик][/b], мочалки в сухопарник на брагу?
Сэмогонщик Опубликовано 29 марта, 2015 Опубликовано 29 марта, 2015 (изменено) мочалки в сухопарник на брагу? Оборудование Добровара, какое я знаю, не для зерновиков, соответственно брага будет сахарная. На сахарной у меня стоит похожая конструкция, работает. Гоню до воды общая крепость 50%. Сверху револьверный холодильник для флегмы, как у буржуев, и далее основной прямоточник. Правда помимо сетки в колонне СПН 4*4 не помню в каком соотношении, примерно 1к1. Снизу сетка, сверху СПН. Мощность 6,5 кВт. Изменено 29 марта, 2015 пользователем Сэмогонщик
Сэмогонщик Опубликовано 18 апреля, 2015 Опубликовано 18 апреля, 2015 (изменено) Вадим, привет! Есть вопрос. Кто нибудь пробовал класть сухофрукты в сухопарник, подчеркиваю именно в сухопарник, те экстракция идет только паром, без жидкости либо внизу, либо стекающей. Вопрос адресую ко всему сообществу. Кстати, сухофрукты почти не пахнут, в них эфиров мало. Я вспомнил, пробовал перегонять настои чернослив, изюм, пустое. Провел неудачный эксперимент с паровой мацерацией гвоздики и мускатного ореха. В кубе 1л сортировки 40%. Гвоздику растолок в ступке, мускатный орех в порошке. Кто пробовал эти специи, тот знает, это очень яркие по запаху специи. Далее все насыпал в сеточный стаканчик. Далее стаканчик поместил в трубу, пар выходящий из куба омывал этот стаканчик. выгнал не много, примерно 700мл ароматного спирта. Запах слабый тусклый. Открыл верхний шлем, достал стакан. Содержимое промокло мало и неравномерно. Внутри спеклось в сухой комок. Слово красивое мацерация. Возникло два вопроса. Кто-нибудь пробовал запаривать такаим образом сухофрукты? И реально этот способ работает? После этого я перегнал настой уже имеющийся этих специй (просто залил настой в куб), дозировка в 3 раза меньше, эффект на порядок лучше. Не зря абсентщики перегоняют настои. Может что не так? Может это для большого погона, скажем на 10л, и за это время все растворится, но мне был нужен ароматный спирт. ПС http://forum.grainwine.info/index.php/topic/303-dzhinkorzina-otravitel-svoimi-rukami-ili-obra/?p=7341 Изменено 20 апреля, 2015 пользователем Сэмогонщик
Добровар Южный поток Опубликовано 31 мая, 2015 Автор Опубликовано 31 мая, 2015 (изменено) Всем привет. Хочу показать недавно сделал такой заказ сухопарник типо джин корзину. Кламп 1.5 дюйма Изменено 20 апреля, 2016 пользователем Добровар тел. 89654225555 "Южный поток"
Добровар Южный поток Опубликовано 1 июля, 2015 Автор Опубликовано 1 июля, 2015 (изменено) Добрый день. Корзина в работе. На данный момент вот такую собираем. Хотелось бы услышать от специалистов критику. Изменено 1 июля, 2015 пользователем Добровар тел. 89654225555 "Южный поток"
КАРАБАС Опубликовано 1 июля, 2015 Опубликовано 1 июля, 2015 На данный момент вот такую собираем. И почем сей девайс?
Добровар Южный поток Опубликовано 1 июля, 2015 Автор Опубликовано 1 июля, 2015 И почем сей девайс? В сборе с клампами 8 т тел. 89654225555 "Южный поток"
АлексейЕсс Опубликовано 23 января, 2016 Опубликовано 23 января, 2016 [member=Alexceich],Добровар Вот рисунки: Рисунки чего? Ты на ХД с этими рисунками, здесь, Алексеич, конструкция не удачная, зайди в раздел продажа, и выбери себе аппарат по душе, есть , как готовые, так и на заказ, обьяснишь ребятам, что хочешь, они сделают. Не оставляю отпечатков – ухожу на бровях!
Владимир 1970 Опубликовано 23 января, 2016 Опубликовано 23 января, 2016 [member=АлексейЕсс], Леш,полагаю что Алексеич менеджер по Продажам. Только стесняется сказать. Хотя чего стесняться? Поймем и простим)) Меня вот тема че то запихать в сухопарник преследует с начала моего чтения ХД. Столько лет уже пихают.... Апофеозом экстракции пожалуй стал а-ля Сокслет от 223-го. И главно ж покупают. Я был удивлён, но даже Слава61 уважаемый человек и то собрался. У Добровара на этой странице была отличная фраза "не зря абсентщики настаивают" Хорошая фраза, правильная. 2
Добровар Южный поток Опубликовано 23 января, 2016 Автор Опубликовано 23 января, 2016 обьяснишь ребятам, что хочешь, они сделают. Я не понял что ты от меня хочешь? если просто показать то пожалуйста только разъясни что да как, а если что бы изготовить то пожалуйста чертежи или на крайняк рисунки только с размерами. И главно ж покупают. Я был удивлён, но даже Слава61 уважаемый человек и то собрался. Тут ты походу загул палку, что по твоему мнению только не уважаемые люди могут купить сухопарник ( джин корзину ) или я неправильно понял тебя? тел. 89654225555 "Южный поток"
vodila Опубликовано 23 января, 2016 Опубликовано 23 января, 2016 только не уважаемые люди могут купить сухопарник ( джин корзину ) или я неправильно понял тебя? Ну Володя упомянул Славу61 как пример человека которого тяжело удивить чем то в самогоноварении и прекрасно понимающего все процессы. Из своего опыта скажу: пробовал джин сделанный на Сокслете от 223, в сравнении с "классическим" джином это компотик... 1
Рекомендуемые сообщения