Перейти к содержанию

Изготовление Изделий Из Нержавеющей Стали Урал


Рекомендуемые сообщения

Опубликовано (изменено)

[member=DVV],  Внешние габариты напиши, дабы прикинуть место для установки.

Дно плоское или под конус ? На сливе барды есть резьба для крепления  фальшь дна или просто труба приварена ?

Изменено пользователем Аквалюб

Если хочешь быть счастливым  - будь им !  (Козьма Прутков )

Опубликовано

Просто труба приварена 

Дно чуть на конус но совсем не много 7-8 мм перепад от краев к центру 

 

post-460-0-33526000-1502961920_thumb.jpg

  • + репутация 2
Опубликовано

Вячеслав, добрый вечер!

Уже спрашивал тебя, но решил изменить конфигурацию.

​Сориентируй по стоимости и примерным срокам изготовления:

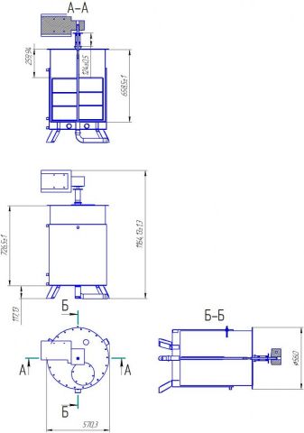
 1) Дэф на 51 трубе длина охл части 300мм 

 2) Угол отбора ф51 с глухой гильзой под градусник ф(вн)8 , кламп 2" + хомут + прокладка
 3) Царга 850мм, ф51, кламп 2" с крестом в нижней части + хомут + прокладка (гильзы не нужны)
 4) Доохлодитель длина охл. части 250 мм внутр трубка 12х1 наружняя 18 х 1,5 , подвод воды 1/2 папа 
 5) Крышка куба по чертежу с кламп 2" и гильзой под термометр D8;L100 + хомут + прокладка
    И подскажи:
1) Какая получится длина отмеченная стрелкой на рисунке без размера
2) Диаметры трубок: на дефе ТСА прямая и под 90 градусов и трубка отбора на узле(угле) отбора 
 
post-6598-0-48648500-1502986517_thumb.jpgpost-6598-0-93902100-1502986535_thumb.jpgpost-6598-0-95062400-1502986575_thumb.jpg
Опубликовано
[member=DVV],Вячеслав, поздравляю! Здоровья дочке и маме, и тебе всего наилучшего!
Опубликовано

С днём рождения дочки ! Здоровья всем !

Опубликовано

Вячеслав поздравляю с рождением дочери! Здоровья всей семье!

Опубликовано

Вячеслав!!! Поздравляю с рождением лапочки- дочки!!!

Опубликовано

Вячеслав поздравляю. 

Опубликовано

Примите искриние поздравления!

А на ПВК 120 вторым можно постоять?

Опубликовано

Спасибо друзья за поздраления. 

Примите искриние поздравления!

А на ПВК 120 вторым можно постоять?

Постоять можно но смысла особого не вижу думаю ПВК уже почти куплен. Если нужно прошу в личку обсудить новый заказ. 

Опубликовано (изменено)

Вот и мне куб приехал. Куб на 30 литров, высота 450 мм, диаметр 300мм перфорированное фальшдно. Куб проварен отлично., шов ровный, аккуратный, на фотках можно оценить

post-7408-0-35448300-1504442211_thumb.jpg

post-7408-0-41973600-1504442213_thumb.jpg

post-7408-0-31493500-1504442215_thumb.jpg

post-7408-0-24870200-1504442217_thumb.jpg

post-7408-0-38539100-1504442219_thumb.jpg

post-7408-0-63477100-1504442221_thumb.jpg

post-7408-0-73194700-1504442223_thumb.jpg

post-7408-0-59064100-1504442225_thumb.jpg

post-7408-0-32089700-1504442227_thumb.jpg

post-7408-0-39629000-1504442291_thumb.jpg

post-7408-0-35594400-1504442293_thumb.jpg

post-7408-0-33189200-1504442295_thumb.jpg

post-7408-0-04002700-1504442297_thumb.jpg

post-7408-0-85903300-1504442298_thumb.jpg

post-7408-0-62996300-1504442300_thumb.jpg

Изменено пользователем melmok
Опубликовано

Получил от Вячеслава новое оборудование. В выходные опробовал на ржаном заторе. Очень доволен железом! Вячеславу респект.

post-5696-0-57783500-1504502077_thumb.jpg

post-5696-0-94620000-1504502094_thumb.jpg

post-5696-0-66359400-1504502113_thumb.jpg

Опубликовано

Вячеслав, а ты случаем прессы для отжима сока не делаешь?

Опубликовано

Вячеслав поздравляю с рождением дочурки! Фальшдно реально изготовить? Сроки?

Опубликовано

Вячеслав, а ты случаем прессы для отжима сока не делаешь?

Привет 

нет не делаю

Вячеслав поздравляю с рождением дочурки! Фальшдно реально изготовить? Сроки?

Спасибо за поздравление 

фальш дно -размеры?

  • + репутация 1
Опубликовано
Вячеслав! Оборудование получил. Огромное спасибо!

С ТК КИТ не советую ни кому связываться: Из трех параметров Быстро Качественно Дешево работает только третий.

Вчера уже опробовал в работе крепость 96,5 производительность 1,3 и на автоматике, после пленочного "Капитана" небо и земля!

post-6598-0-37771900-1505131564_thumb.jpeg

  • + репутация 3
Опубликовано

Как заказать фальш дно, реально интересует?

Опубликовано

 

 


опробовал в работе крепость 96,5 производительность 1,3
какая высота колонны ??

Для публикации сообщений создайте учётную запись или авторизуйтесь

Вы должны быть пользователем, чтобы оставить комментарий

Создать аккаунт

Зарегистрируйте новый аккаунт в нашем сообществе. Это очень просто!

Регистрация нового пользователя

Войти

Уже есть аккаунт? Войти в систему.

Войти
  • Последние посетители   0 пользователей онлайн

    • Ни одного зарегистрированного пользователя не просматривает данную страницу
×
×
  • Создать...