Перейти к содержанию

Эмульгационный режим работы насадочных колонн


Strike01

Рекомендуемые сообщения

Опубликовано (изменено)

Эмульгационный режим становится популярным, но информация разбросана, постепенно соберу здесь все наработки коллег и добавлю информацию от себя.

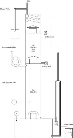
1. Классический режим работы с переливом, из учебника Кафарова

Дополнительно к стандартному оборудованию понадобятся следующие элементы:

1) Узел ввода пара (УПО с заужением свободного сечения 1:10)

Может быть реализован различными способами, в литературе это колпачок.

2) Перелив, он состоит из шлангов, тройника и штуцера установленного в кран слива куба.

3) Зажим гофмана или краник на выходе из УПО для регулирования уровня затопления

4) Еще рекомендую диоптр, с ним намного проще вести первый запуск.

Схема сборки:

- Куб

- УПО с заужением

- Колонна, в учебнике сказано о недопустимости разрыва в насадке, размер насадки СПН рекомендую не менее 3х3

- Диоптр

- ЦП(желательно)

- Дефлегматор

Собираем колонну в указанном выше порядке, после чего устанавливаем перелив.

1) Сначала надеваем шланг на штуцер УПО

2) Далее его необходимо опустить ниже уровня жидкости в кубе, тут я для удобства ставил П образный соединитель.

3) После этого пускаем шланг вверх не доходя 5-10см до середины колонны

4) на этом уровне устанавливаем тройник

5) на вернюю трубку тройника одеваем шланг, по высоте достаточно 30-40 см

6) из тройника опускаем шланг до штуцера, установленного в кране слива из куба

post-8980-0-41186500-1558272847_thumb.jpgpost-8980-0-23903500-1558272850_thumb.jpgpost-8980-0-32864900-1558272853_thumb.jpgpost-8980-0-93317900-1558272856_thumb.jpg

График и схема из учебника:

post-8980-0-51094200-1559574018_thumb.jpgpost-8980-0-73806900-1559573944_thumb.jpg

В схеме хочу уточнить несколько моментов, она для работы под вакуумом, поэтому в нашем атмосферном варианте, не нужен холодильник 7, а так же соединение переливного тройника с дефлегматором. В узле ввода пара достаточно одного колпачка.

 

От AlexeyT:

post-2-0-78008200-1558360706_thumb.jpg

В принципе, проведя около 50 ЭМУ, мне далее - неинтересно.... все работает, по Кафарову.[/size]

Насадки были 2*2 , 3*3, 4*4 отВлада, Диогенка 3.5*3.5, 4*4 от Ректифая, кольца Рашига 6*6*1, 6.3*6.3*0.8, 7.5*7.5*0.4, РПН, мочалки[/size]

 

- никакой автоматики особенной по давлению НЕ нужно. Давление в данной схеме НЕ является определяющим[/size]

- максимум 1 день нужно убить на подбор высоты перелива и рабочей мощности. глядя на контрольку ЯННа. Оберег РИФа - в помощь! Сохранит спирт[/size]

- вводить в ЭМУ нужно примерно с 70-75% от рабочей мощности, неспехом. прибавляя по 5-10 вольт в 3-4 минуты. Это - не потерянное время, это - работа на себя [/size]

- насадка , как и в пленке, является ОПРЕДЕЛЯЮЩЕЙ. в том смысле. что если на РПН имеется 5 ТТ, то в ЭМУ ожидать появления 20 - не стОит. максимум в 2 раза. и - Крелева формула 1 к 10 РУЛИТ![/size]

- ЦП работает в почти затопленной пленке . поэтому насадку нужно попушистее.[/size]

- отбор голов идет быстрее пленки.[/size]

- бредни про огромную отбраковку несостоятельны(см Слив РИФа)[/size]

- падение давления и уровня в конце - ЕСТЕСТВЕННЫЙ процесс, не требующий НИКАКОГО вмешательства[/size]

- старт/стопа в обычном представлении тут практически НЕТ, если Т поползла - наверняка уже не вернется. Слив РИФа рулит!![/size]

- нагрев/отбор на разных трубах[/size]

= Ф40*1 1500/1300[/size]

= Ф51*1.5 2200/2000[/size]

= Ф63*1.5 3000/2500[/size]

 

- трубочки желательно ставить ф10, особенно на трубах от Ф50. и в дефе ТОЖЕ! я высверливал и перепАивал на ф8х1 деф. [/size]

- силиконовые трубки на переливе нужно иметь большого диаметра. чтобы не создавать лишнего сопротивления потоку[/size]

- достаточно ОДНОЙ перегонки с СС(раскисленного и с отбором ЭАФ 1% прямым при нагреве). ИМХО!!![/size]

- высоты вполне хватает 1000-1200 на ЭЦ . плюс ЦП.[/size]

- для перфекционистов можно тянуться на 2-3 метра. получая 97%[/size]

- для супер перфекционистов можно и вторую ЭМУ гнать, получая нулевые ГХ. по мне - эаф менее 2 мг/л и сивухи менее 1 мг/л вполне нормально[/size]

- с браги тоже можно получать продукт, за 1 перегон. РИФ это убедительно показал, получив 97%+ . Он же - еще более убедительно доказал, что при малых объемах бака и большой трубе этим заниматься НЕ стОит... просто труба высасывает весь спирт с куба и после отбора ЭАФ сразу начинается пляска по Т*с. Нужно иметь хотя бы 1 к 2 по АС труба/куб[/size]

 

 

2. Вариант работы с автоматикой по давлению

Тестил на днях новый режим автоматики, а именно поддержание заданного давления мощностью и заодно разные схемы оборудования.

Первый вариант: с тройником и краником на переливе - все работает, но в таком режиме можно и без автоматики, как всем и известно. Давление в кубе 55мм.

 

Второй вариант: под царгой тот же УПО с заужением, но с дополнительным узлом под ним, для слива флегмы в куб, без перелива. Тут без автоматики по давлению никак.. Давление задал то же, что и в первом варианте, уровень эмульсии был ровно на том же уровне, крепость и органалептическое качество спирта один в один. Автоматика отрабатывает отлично.

 

Третий вариант: вспомнил про то, что десятигранка 3×3 самозатопляемая.

Убрал все узлы под царгой и поставил на куб диоптр с той же насадкой.

На мощности 1500, давление было 10мм.

На мощности 1800, колонна начинает затапливаться, причем снизу как и надо.

Задал на автоматике давление 59мм и ограничение мощности 2200вт, получил стабильный уровень эмульсии, на пару см ниже верхней части насадки.

Качество спирта с первыми 2-мя вариантами, без изменений.

Так и отобрал 12 литров, замерил сегодня итоговую крепость - 96.8.

Навалка в кубе 80%, стартовая мощность была 1800, к 97° в кубе, автоматика подняла до 2150вт.

Отбор до 85° вел без снижения, 1600мл в час, после 85 по шпоре вниз, хотя тут нужна коррекция, так как мощность плавно увеличивается.

Вроде ничего не забыл.

post-8980-0-14203900-1558273346_thumb.jpgpost-8980-0-17836600-1558273342_thumb.jpgpost-8980-0-60581400-1558273337_thumb.jpg

Удержание автоматикой заданного давления

https://www.youtube.com/watch?v=eEdoxBpFwVo

Изменено пользователем Strike01
  • + репутация 6
Опубликовано

Братцы, кто эмульгировал, выкладывайте сюда инфу!

РИФ и Ильч 7721 , ауууу...Стопик, Антел и др

Опубликовано

[b][member=alexeyT][/b], Дядь,так разное оборудование и обвесы у нас,я чистую ЭМУ уже почти год не практикую,сам знаешь залпами СПИРТЯГУ гоню.....а потом Автор "обскакал" всех ...от перелива до автоматики по давлению,уже и добавить то нечего :crazy:

Опубликовано

[b][member=7721][/b], отпишись про железяки, режим и ГХ выложи. пжлста! 

Опубликовано

Какой то эффект от эмульгации только на крупной насадке, 4х4 и выше, на 3х3 уже не интересно, практически тоже, что и на предзахлебе (у меня получается),  и  по спиртуозности,  и по скорости отбора, (мощность практически одинакова).

  • Спасибо 1
Опубликовано (изменено)

Какой то эффект от эмульгации только на крупной насадке

согласен, на 4-ке у меня повеселее было, стартовый отбор 2 литра, но плюс эмульгации еще в возможности работы на короткой колонне Изменено пользователем Strike01
Опубликовано

Риф свои ГХ переслал, завтра разрежу и выложу

Опубликовано (изменено)

С лета 2017г. будоражила голову мысль а как на своем оборудовании поднять производительность без ущерба качеству?Оборудование на тот момент было заточено под технологию Сержа-Алкабата. ....,РК-1900х38 спн 3.5х3.5,работал в пленке 0.35-0.4л/час. СПИРТ хороший получал,но долго и оборотки дохера и больше.В ноябре-декабре -2017г решил вывести РК в режим ЭМУ.,благо алексей Т. консулЬтировал по пунктам :rtfm:. Обвеса типа тройника и зауженийй УПО  не было в той комплектации,но постепенно вывел РК в режим,давление 83ммрт. моща 700-720вт.,отбор 0.65-0.67л/час,да...не много кто то скажет,но для меня это был ПРОРЫВ ,на тот момЭнт.Получил в итоге ГХ с нулевыми примесями по основным показателям ГОСТА на СПИРТ. В теме Петровича выложена ГХ ссыль позже.https://forum.grainwine.info/index.php/topic/517-laboratornie-issledovanija-sposobov-i-metodov/page-47?do=findComment&comment=329569 Далее интересней,появилась тема Гровировка  и ГрЭМУ. https://forum.grainwine.info/index.php/topic/1619-zamknutaja-rektifikacija-zr-ona-zhe-grovirovka/ Решил собрать новый комлект но уже заточенный под эмульгацию -залповые сбросы.В арсенале основная царга ф40-1200мм Владова десятигранка 4х4 ,буфер-рефлюкс,ЦП-400мм с РПН.Регулируемое УПО.Нагрев 1.7-1.75кВт. отбор 1.5л/час Высота утки-перелива 52-54см,никаких краников регулировок нет у меня и не надо.При падении % в кубе перелив автоматически прекращается,добавляю воды шоб не сжечь тены и добираю оборотный спирт в ноль.Головы отбираю в менее напряженном режиме 1.2-1.3кВт.Крепость СПИРТА 96.65%-96.8%Гоню в основном крепкую навалку,предочищенный СС!.В майские отработал по полной отходы дистилляций-ректификаций.Скоро свежачок ГХ выложу,а то обосрался я тут с брагой аж 100мг ИП получил???Надеюсь реабилитироваться :thankyou:post-2009-0-49404100-1514365743_thumb.jppost-2009-0-24303200-1535724999_thumb.jpПоследнее ГХ это тоже отработка отходов-оборотки.https://forum.grainwine.info/index.php/topic/1725-gh-gazohromatogrammi-spirtosoderzhashih-zhidkos/page-3?do=findComment&comment=388940

Изменено пользователем 7721
  • + репутация 1
  • - репутация 1
Опубликовано

Всем привет . В ЭМУ попал не преднамеренно ... при обкатке колонны пытался ее захлебнуть ...долго не получалось ))) Гнал с браги , захлебывал на давлении 140-150 мм рт ст. Алексей подсказал , что я в ЭМУ колонну загнал ... Ну тут с стал внимательно изучать темы ЭМУ на ХД , консультируясь у Алексея ... Около 10 перегонов без утки с браги ... Кратенько по железу -3 м колонна 2" ( делал по патриарху ещё ))) , насадка СПН 3*3 Селиваненко , колонна стационарная с боковым вводом - приварен ниппель 2" , пыж от Селиваненко - как рассекатель . В последствии приладил утку , воткнул ЦП 50 см с РПНкой , игольчатый кран внизу колонны для слива остатков спирта с колонны при останове и откапывание сивухи в процессе ректа , 2 СТХшки .Головы и п/г отбираю в плёнке - для этого приладил типа байпаса для прямого слива с колонны в куб , перекрываю шланги канцелярскими прищепками . На все ТСА ( в Дэфе и перетоке ) одеты силиконовые трубки , выходящие в емкости ...- во избежании потерь ....))) . Доохладителя спирта нет ..., воткнул 3-метровую нерж трубку. Ф6 - по ней и охлаждается . ГХ попросил Алексея выложить , у самого с айпада не получилось ... Спачибо за помощь и консультации АлексеюТ ....

P.s. по режимам подзабыл )) - вдуваю 1800-1850 Ватт , отбор 1,5 л/ч . Колонна чересчур длинная ))- больше газануть не получается , да и так устраивает , не охота по новой все расковыривать пока ...

  • + репутация 2
Опубликовано (изменено)

 гх Рифа. 2019

Комментарии к ГХ этого года (2019) :
Образец 7 сахар ЭМУ 1,5 л/ч 
Образец 13 изики в ЭМУ 1,5 о/ч
Образец 14 п/гол в ЭМУ 0,65 л/ч
Образец 15 п/гол в ЭМУ 1л/ч
Образец16 п/гол в ЭМУ 1,5 л/ч

 

post-202-0-22305700-1558321668_thumb.jpg

 

post-202-0-45495800-1558317362_thumb.jpg  post-202-0-27888600-1558317372_thumb.jpg

 

post-202-0-20958600-1558317381_thumb.jpg  post-202-0-59403400-1558317390_thumb.jpg

 

 

Изменено пользователем alexeyT
  • + репутация 1
Опубликовано

P.s. Перелив на высоте 130 см , давление 80 мм рт ст .

Опубликовано

Как только коллеги начали работать в Эму, тоже перешел от повышенного давления на этот метод. Оборудование: 2"; царга 17см.с СПН 2х2; УО; царга с диоптром 157см с СПН 3,5х3,5; ЦП с 5х5; деф с ф8х4метра.  Перелив на 56 см. Мощность 2.3-2,35квт., давление 63-65мм/рт., отбор 2л/ч. СС, после предочистки на коротыше и последующего Откази, примерно 80%. После 85гр. в кубе начинаю снижать отбор и прибавлять мощность для удержания уровня эмульсии. Отбор тела заканчиваю на 93гр. в кубе, остальное - в оборотку до 97гр, но ее по объему немного. Спирт по ГХ (спасибо АлексеюТ) лучше Альфы в 2,5 раза.

  • + репутация 1
Опубликовано (изменено)
[member=pvn28],непонятно ... КАЗИ зачем??
Если Снабби жестко выполнена, кази будет лишним звеном
Головы отобраны, пусть не до конца. Кислоты срублены, этерификации не будет Изменено пользователем alexeyT
Опубликовано (изменено)

КАЗИ зачем?? Если Снабби жестко выполнена, кази будет лишним звеном

СнаБби не делаю, гоню в СС, а уже потом очистка. При Снабби я много времени теряю на сборку-разборку оборудования. Браги 180л, куб 50л. Нужно управиться за день.

Изменено пользователем pvn28
Опубликовано (изменено)
лучше Альфы в 2,5 раза.

[member=pvn28], показатели для "альфы" - предельные. Например, сивухи должно быть не более 5 мг/л б.с. Но реально в альфе может быть 0,5 мг/л б.с. (только изопропиловый). Эфиров допускается до 10 мг/л б.с., но на практике в заводском ректификате их просто ноль.

Так с чем ты сравниваешь, что "в 2,5 раза лучше"?

Изменено пользователем Daniil

анализ самогона методом газовой хроматографии

Опубликовано (изменено)
[member=pvn28],тогда понятно. В сс кон кидай. Иначе этерификация будет в кази подгаживать. Там кислот в кубе выше крыши Изменено пользователем alexeyT
  • + репутация 1
Опубликовано

 

 


кон
Чего то знакомое,не могу вспомнить,что за кон?
Опубликовано

[b][member=FOX65][/b], шутишь? Калия гидроксид КОН. 

анализ самогона методом газовой хроматографии

Опубликовано

 

 


Так с чем ты сравниваешь, что "в 2,5 раза лучше"?
Сравнивал с Гост, но вполне возможно, что в силу неопытности, в свою пользу. Не получается вставить картинку, пишет недопустимое расширение файла.
Опубликовано

post-2469-0-98214600-1558287390_thumb.jpg

Блин чёто втрой файл не грузится, хотел для информации прилепить.(((

  • + репутация 1
Опубликовано (изменено)

А как он в простонародье называется,купить его где?
Продают кое-где, например: https://himik24.ru/collection/gidroksidy-kupit

[member=БайбаК], лучше смотреть требования ГОСТ 5962-2013 Спирт этиловый ректификованный из пищевого сырья. Технические условия (http://docs.cntd.ru/document/1200103298), а тот ГОСТ Р 51652-2000 - отменён.

Изменено пользователем Daniil
  • + репутация 1

анализ самогона методом газовой хроматографии

Опубликовано

Отлично, тема наполняется. Потом попробую смое важное в первый пост добавить.
[member=7721],случайно тебе минус влепил, извини)

Опубликовано (изменено)

Выложил 4 ГХ Рифа, этого года (на 1й стр)

 

РИФ еще прошлогодние нашел

Образец 3- спирт ЭМУ с голов 
Образец 5- спирт ЭМУ сах сырец -1л/ч 
Образец 6- спирт ЭМУ сах сырец -2 л/ч

post-202-0-98539500-1558321324_thumb.jpg  post-202-0-57690400-1558321334_thumb.jpg  post-202-0-20296500-1558321346_thumb.jpg

Изменено пользователем alexeyT
  • + репутация 3
Опубликовано

post-3223-0-38156500-1558323963_thumb.jpg

Получилось вставить с телефона. Спирт получен в Эму.

  • + репутация 4
Опубликовано

НБК в ЭМУ. Насадка РПН. Минимальная высота отгонной части: Двн 35мм - 500мм; Двн 49мм - 700мм

Для публикации сообщений создайте учётную запись или авторизуйтесь

Вы должны быть пользователем, чтобы оставить комментарий

Создать аккаунт

Зарегистрируйте новый аккаунт в нашем сообществе. Это очень просто!

Регистрация нового пользователя

Войти

Уже есть аккаунт? Войти в систему.

Войти
  • Последние посетители   0 пользователей онлайн

    • Ни одного зарегистрированного пользователя не просматривает данную страницу
×
×
  • Создать...