dim65 Опубликовано 7 ноября, 2017 Опубликовано 7 ноября, 2017 при высокой спиртуозности в кубе КТ залит спиртом и не кипит, обеднить пары проходящие через КТ получается только совсем прижав возврат флегмы, а это плохо для колонны. Конечно не кипит. КТ закипает от воды. При ее конденсации. Воды мало и ту в нижней царгочке сбросили в куб. Или мощности может прибавить, чтоб пара побольше стало, при том же возврате из основной колонны воды больше станет и закипит. Или насадки из царгочки отсыпать. Или третье - возврат из основной перенаправить прямо в куб. Но тогда царгочка смысл теряет по-моему.Наверно все же отсыпать насадки. ИМХО.
alexeyT Опубликовано 7 ноября, 2017 Опубликовано 7 ноября, 2017 [b][member=dim65][/b], сей аппарат предназначен для перегонки БРАГИ.... мощно и эффективно должен работать тогда и не будет никаких косяков с закипанием.... а для СС - другие конструкции и метОды.
dim65 Опубликовано 7 ноября, 2017 Опубликовано 7 ноября, 2017 (изменено) [member=alexeyT],да в общем то так. Надо попробовать, красивая компоновка. Вниз медяхи и УПО. Коллега топикстартер просил поговорить, вот и все пришедшие в ум варианты озвучиваю чисто как имхо для обсуждения. Изменено 7 ноября, 2017 пользователем dim65
firt Опубликовано 7 ноября, 2017 Автор Опубликовано 7 ноября, 2017 Флегма с основной колонны сливается через перелив в испаритель. Флегма с КТ поступает к крану отбора, где выводится либо переливается в тот же перелив. КТ предполагаю полностью залит спиртом, но можно патрубок забора опустить. Отбор переливом через петлю шланга для компенсации перепада давления, ну и далее доохладитель. Отбор ЭАФ думал вести прям из узла распределения флегмы. Леш, а если я могу отрегулировать чтобы на входе в КТ у меня была жидкая фаза около 40%, на выходе укрепится уже до 90 . Получается весь диапазон концентраций промежуточных. Если отводить то они не будут лезть в колонну, а колонна уже добьет их. Флегма с колонны опять же закольцована, она сливается ниже КТ и снова проходит через него. Мне как то так это представлялось. И судя по опытам, похоже на то. Когда я не отводил сивуху , через некоторое время в отборе появлялся посторонний запах, начав сливать сивуху - этот же запах присутствовал и в ней. А когда постоянно отводил сивуху, в отборе постороннего запаха вроде не было. Это если верить моему носу опять же. Сейчас я использую свой опытный образец как автостоп, ЦП, ну и убираю сивуху. А все опыты с накручиванием режимов были именно для, поглядеть возможность использовать конструкцию для непрерывной перегонки. 2
alexeyT Опубликовано 7 ноября, 2017 Опубликовано 7 ноября, 2017 (изменено) [member=firt], 1. КТ работает тем эффективнее. чем ниже спиртуозность на входе. на 40% - весьма посредственно 2. схема с возвратом сивухи после насадочной обратно в куб - отлично себя зарекомендовала. а вот если отводить сивуху в указанной точке - потери неоправданно велики 3. самое интересное - это ЭАФ.... схема необычная и , весьма возможно, ПРОРЫВНАЯ ! вот только б убедиться. что головы в доп трубу не лезут... РЕСПЕКТ!! пысы. на непрерывке - крайне сомнительно...как уже говорил Изменено 7 ноября, 2017 пользователем alexeyT
firt Опубликовано 7 ноября, 2017 Автор Опубликовано 7 ноября, 2017 Очень хочется непрерывку, заливать сливать куб 30 л бесит. С кубовым несколько проблем есть при такой схеме. В начале, когда максимум голов нужно удержать, получается минимальное кипение КТ. А в конце все наоборот. К концу можно конечно подрегулировать возврат флегмы и сместить баланс. И запуск, головы попадают в непрогретую вспомогательную колонну изначально, и есть вероятность их попадания в отбор. Я условно решил эту проблему, ведя отбор спирта из переливной трубки КТ. А попавшие головы испаряются из рубашки КТ и поднимаются по колонне. Или есть еще вариант. При запуске заливать рубашку КТ спиртом, а флегму некоторое время разогрева возвращать в куб
alexeyT Опубликовано 7 ноября, 2017 Опубликовано 7 ноября, 2017 а флегму некоторое время разогрева возвращать в куб не уверен.. там мочалки . как спирт закипит в кТ- он и ЭАФ выдавит нах обратно. ИМХО
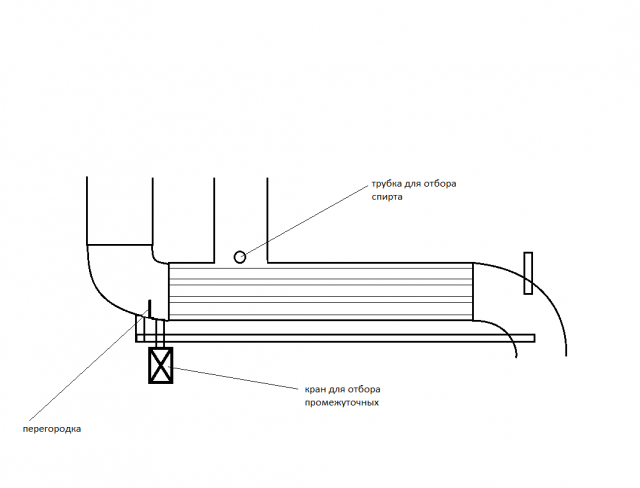
firt Опубликовано 8 ноября, 2017 Автор Опубликовано 8 ноября, 2017 Иван! Раз уж фото показал( хотя плохенькие), на основе фото и своей установки нарисуй все вертикально . с входами и выходами.
Виктор Крюгер Опубликовано 9 ноября, 2017 Опубликовано 9 ноября, 2017 Иван! Перемычка нарисована между вспомогательной колонной и КТ. Она выполняет роль крепежно-конструкционную? Так идею твою осознал. Ты за один прогон хочешь получить спирт. При этом хочешь использовать непрерывный автономный парогенератор с возвратом конденсата( разработка Алексея Т) и НБК и далее все обвесы для укрепления и получения спирта (естественно с отбором голов, причем отбор спирта не из того же патрубка, а ниже, т. е два выхода) У Алексея РК имеет один клапан.
alexeyT Опубликовано 9 ноября, 2017 Опубликовано 9 ноября, 2017 непрерывный автономный парогенератор с возвратом конденсата( разработка Алексея Т) нет. он предполагает использовать идею Запала НБК с ПРЯМЫМ нагревом браги 1. с кубовой перегонкой все более-менее понятно, возврат с нсадочной идет обратно в куб(отработанная схема) а вот с головами - наиболее ИНТЕРЕСНО. Если оно реально работает - это ПРОРЫВ 2. с непрерывкой - вопросов слишком много... там и КТ нах не нужен... и возврат в НБК - это нонсенс... нет КТ - нет оригинальной ЦП.... ну и так далее
Виктор Крюгер Опубликовано 9 ноября, 2017 Опубликовано 9 ноября, 2017 Алексей! в теме Запала один выставил наклонные колонны с внешним ленточным нагревом. Идея Запала - один из вариантов его воздушный оребренный тэн. Другой человек предложил польский вариант наклонные колонны друг против друга с ленточными нагревателями. Если верить Ивану, -у него получается спирт и головы, даже циркулируя опять попадут в узел отбора. Он сетует, что куб 30л его не устраивает. Получается проще ему поставить 60л и два тэна. Иван заявил, что производительность 3,5л в час. то точно -Прорыв!
firt Опубликовано 6 декабря, 2017 Автор Опубликовано 6 декабря, 2017 (изменено) Вот набросал варианты: Можно будет КТ вертикально и горизонтально расположить. Испробую как дистиллятор, без колонн, должно чтото забавное получиться. Надеюсь к НГ сварят мне эту приблуду. Картинка повернута, почему-то, не знаю как поправить Изменено 6 декабря, 2017 пользователем firt
alexeyT Опубликовано 7 декабря, 2017 Опубликовано 7 декабря, 2017 что производительность 3,5л в час. то точно -Прорыв! 1. 96%. которые еще АСП-1 через сутки перепроверить 2. у Ивана - кубовая, на твоей картинке - непрерывка. Вышла Маша в огород...
firt Опубликовано 7 декабря, 2017 Автор Опубликовано 7 декабря, 2017 Теоритически с 2 кВт можно снять до 5 л Сняты были опытные данные при кубовой перегонке, понятно что при непрерывном цифры будут другие. Я и не говорю что сделал неприрывку, это хотелки и предположения. Пока на куб колонна вот такая придумалась и опробовалась, дальше поглядим что выйдет, как руки дойдут. Для того и обсуждение чтоб слабые места найти и устранить какие то недочеты, пока до железа не дошло. Пока выбрал окончательную компановку существующей уже у меня колонны, спасибо кстати Саше - Седой, за наводку. Дальше нужно додумать как ее с нбк скрестить и с какой нбк, выяснить на что можно напороться. Название темы я конечно как то сумбурно выбрал, походу про что думал, то и написал).
alexeyT Опубликовано 7 декабря, 2017 Опубликовано 7 декабря, 2017 [b][member=firt][/b],Иван. просто довести до ума нужно кубоОвую. а уж после - на непрерывку идти
dim65 Опубликовано 8 декабря, 2017 Опубликовано 8 декабря, 2017 после - на непрерывку идти Много думал. Наверно нет. Даже наверняка. Смотри: в КТ тепловой поток делится: половина условно говоря в царгу удерживающую хвостовые промежуточные, половина в царгу отделяющую головы, как бы пастеризации. При непрерывке на входе спиртуозность пара постоянная, все это можно сбалансировать раз и навсегда. При кубовой пар на входе плавно уменьшает свою спиртуозность. Или регулировать или на саморегуляцию ориентироваться. У КТ автостоп есть, факт. А вот баланс похоже не в ту сторону будет ползти. Все больше тепла в царгу голов- пастеризации, все меньше в другую.
firt Опубликовано 9 декабря, 2017 Автор Опубликовано 9 декабря, 2017 (изменено) А вот баланс похоже не в ту сторону будет ползти. Все больше тепла в царгу голов- пастеризации, все меньше в другую. так и есть. И не совсем так одновременно. При кубовом, КТ разгружает колонну, степень разгрузки можно регулировать количеством возвращаемой флегмы в основную колонну. Если баланс не трогать то отбор по мере истощения куба уменьшается пропорционально количеству поступающего в колонну спирта. Но основная колонна всегда загружена ровно на столько на сколько выставлен возврат флегмы на орошение насадки + количество спирта на отборе. К концу перегружается колонна "пастеризации" (название удачное такое), Лучше бы конечно если бы было наоборот, для голов. Я для себя, алгоритм работы в кубовом варианте вижу так: Прогрев основной колонны и заполнение ее спиртом, полный возврат флегмы в основную колонну, и начало отбора голов. Закрываю отбор голов, регулирую возврат флегмы, начинается заполнение рубашки КТ и прогрев колонны пастеризации. Когда колонна пастеризации прогревается, потихоньку продолжаю отбирать головы, выставляю желаемый баланс возвратом. Далее когда подойдет время, начинаю отбирать вонючеры с под КТ потихоньку. К концу можно подкрутить баланс и слить все вонючеры, если что то еще останется. Закрываем отбор голов и вонючеров и до полной остановки отбора. Примерно так. Со спирта, полученного по такому алгоритму, делал сортировку. Все кто пил, сошлись в одном мнении, что какая то она не пьяная. Уж не знаю что бы это значило. Изменено 9 декабря, 2017 пользователем firt
firt Опубликовано 10 декабря, 2017 Автор Опубликовано 10 декабря, 2017 Обнаружил несостыковочку... Нельзя делать общий дефлегматор. Не получится головы сконцентрировать, их постоянно будет разбавлять паром из основной колонны. Пар с основной колонны нужно отдельно конденсировать, делить и часть ее минуя узел отбора голов, направлять в колонну пастеризации. Опять блин возвращаюсь к двум дефлегматорам.
dim65 Опубликовано 13 декабря, 2017 Опубликовано 13 декабря, 2017 (изменено) [member=firt],полностью соответствует учебнику. Для разделения трёхкомпонентный смеси необходимы две колонны. При этом в момент времени смесь всегда представляют как трёхкомпонентную : головы-спирт-хвосты. На пастеризационной царге упрощенный дефлегматор достаточен димрот прямо в трубе и дырка отбора голов по пару. На царге хвостов нужно выдерживать ФЧ, или стандартный или подумать о дефе с фиксированным ФЧ. И спирт заливать в КТ изначально обязательно мне кажется надо. Изменено 13 декабря, 2017 пользователем dim65
alexeyT Опубликовано 13 декабря, 2017 Опубликовано 13 декабря, 2017 И спирт заливать в КТ изначально обязательно мне кажется надо. однозначно
firt Опубликовано 13 декабря, 2017 Автор Опубликовано 13 декабря, 2017 Так в том то и дело что возврат флегмы фиксирован, в связке с КТ это горантия что колонна ни когда не обедниться по спирту. Я ж про это и говорю изначально, не регулируем отбор, а выставляем фиксированный возврат флегмы! С головами да ничо нового, просто думал поизящней дэф сделать, не судьба. Заделаю как и было 2 дэфа походу, только отбор с первой колонны буду вводить во вторую сантиметров 30 ниже верха. Верно же мыслю? Спирт в КТ может и не нужно будет заливать, потом опытно посмотрим.
alexeyT Опубликовано 13 декабря, 2017 Опубликовано 13 декабря, 2017 а выставляем фиксированный возврат флегмы! это работает ДО момента падения спиртуозности ниже 7-8% банально - спирта перестает хватать... на поддержание статус кво Ключевое слово - Серегин стаканчик. был опИсан на ХД Сергеем1972 в 2011 (вроде)
firt Опубликовано 13 декабря, 2017 Автор Опубликовано 13 декабря, 2017 [b][member=alexeyT][/b], Леш а поподробней про стаканчик, а то не нашел, вернее нашел твои упоминания, походу кроме тебя никто его больше так не называл
firt Опубликовано 13 декабря, 2017 Автор Опубликовано 13 декабря, 2017 Нашел стаканчик. Это немного не то, гораздо ближе был Литокс, когда он ставил перед колонной небольшой холодильник и отбор с колонны вел по пару. Но там тоже не было гарантии что куб дожмется. От этого я и оттолкнулся кстати, если вместо холодильника использовать линас, то проблема с недожимом куба уходит сама собой. Завтра попробую обьяснить, время много, залипаю уже.
alexeyT Опубликовано 14 декабря, 2017 Опубликовано 14 декабря, 2017 1. ЛИНАС , ессно, выжмет все до нуля (если у тебя терпение железное) 2. а фикс возврат нужно корректировать по падению спиртуозности... нетривиально!
Рекомендуемые сообщения
Для публикации сообщений создайте учётную запись или авторизуйтесь
Вы должны быть пользователем, чтобы оставить комментарий
Создать аккаунт
Зарегистрируйте новый аккаунт в нашем сообществе. Это очень просто!
Регистрация нового пользователяВойти
Уже есть аккаунт? Войти в систему.
Войти